松山不動産.COM TOPページ > 松山市古川北4丁目 > 古川北4丁目土地1号地
JR予讃線 市坪駅椿小学校区土地1620万円の物件詳細です。
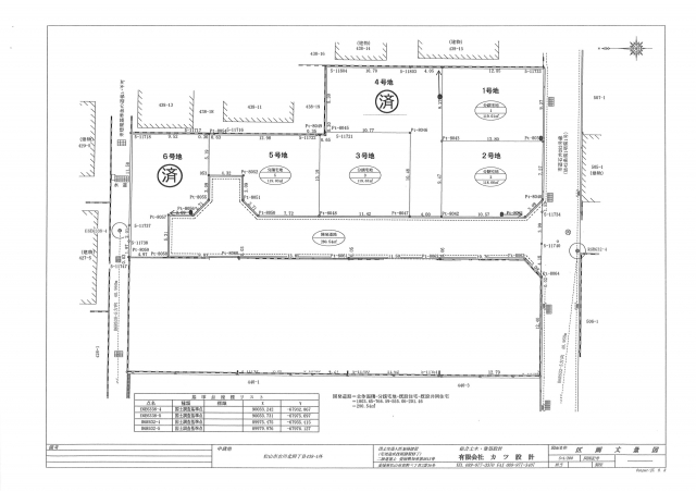
松山市古川北4丁目 土地
価格 1,620万円 返済例 月々 円
JR予讃線 市坪駅 徒歩21分
土地
土地面積 119.00㎡(36坪)| 物件番号 | 12720 |
|---|---|
| 住所 | 松山市古川北4丁目 |
| 最寄駅 | JR予讃線 市坪駅 徒歩21分 |
| 小学校区 | 椿小学校区 |
| 中学校区 | 椿中学校区 |
| 物件名 | 古川北4丁目土地1号地 |
| 土地面積 | 119.00㎡ |
| 土地権利 | 所有権 |
| 地目 | 宅地 |
| 地勢 | 平坦 |
| 都市計画 | 市街化区域 |
| 用途地域 | 第一種低層住居専用地域 |
| 建ぺい率 | 50% |
| 容積率 | 80% |
| 備考 | ●全6区画の新規分譲地 ※建築協定有 ●人気エリア・生活便利 ●開発道路(道路幅員約5.3mと広々) ●上水道負担金35万円 ●下水道受益者負担金250円/m2 ●境界基礎・ブロック塀費用負担有り |
| 建築条件 | 付 |
| 設備 | 水道:公営/ガス:プロパン/排水:下水 |
| 現況 | 未完成 |
| 引渡し | 2026年 04月 下旬 |
| 取引態様 | 仲介 |
| 情報更新日 | 2026/04/28 |
| 次回更新予定日 | 2026/05/28 |
現在の店頭基準金利は2.475%
1620万円 借入期間年/金利%
毎月のお支払い額
円
※頭金0円でボーナス払いなしの場合の金額です。
また、お客様のご条件により金利の優遇幅が変動する場合があります。
また、お客様のご条件により金利の優遇幅が変動する場合があります。
古川北4丁目売土地1号地

人気エリア!
利便性良く生活便利!

| 物件担当の大堀 聡です。 現地へのご案内につきましてはお気軽にお問い合わせください。 |

ボタンをクリックすると、物件近辺からのルート検索、周辺の生活施設の検索が可能です。
| 物件ページQR | |
| 物件周辺地図QR |
その他設備・条件



























お問合せの際は、物件番号No.33537をお知らせいただくとスムーズにご紹介ができますのでよろしくお願い致します。