松山不動産.COM TOPページ > 松山市南斎院町 > 南斎院町土地4号地
伊予鉄道郡中線 余戸駅味生第二小学校区土地1548.8万円の物件詳細です。
松山市南斎院町 土地
価格 1,548.8万円 返済例 月々 円
伊予鉄道郡中線 余戸駅 徒歩31分
土地
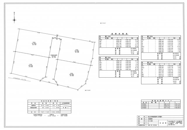
土地面積 160.00㎡(48.4坪)| 物件番号 | 12190 |
|---|---|
| 住所 | 松山市南斎院町 |
| 最寄駅 | 伊予鉄道郡中線 余戸駅 徒歩31分 |
| 小学校区 | 味生第二小学校区 |
| 中学校区 | 津田中学校区 |
| 物件名 | 南斎院町土地4号地 |
| 土地面積 | 160.00㎡ |
| 土地権利 | 所有権 |
| 地目 | 宅地 |
| 都市計画 | 市街化区域 |
| 用途地域 | 第一種低層住居専用地域 |
| 建ぺい率 | 50% |
| 容積率 | 80% |
| 備考 | ・位置指定道路 許可済み ・水道負担金 35万円 ・下水道受益負担金 m2/253円 ・境界基礎・ブロック2段・メッシュフェンス施工費用 別途要 ・電柱・支線が敷地内に設置される区画があります |
| 設備 | 水道:公営/排水:下水 |
| 現況 | 未完成 |
| 引渡し | - |
| 取引態様 | 仲介 |
| 情報更新日 | 2026/01/08 |
| 次回更新予定日 | 2026/02/07 |
現在の店頭基準金利は2.475%
1548.8万円 借入期間年/金利%
毎月のお支払い額
円
※頭金0円でボーナス払いなしの場合の金額です。
また、お客様のご条件により金利の優遇幅が変動する場合があります。
また、お客様のご条件により金利の優遇幅が変動する場合があります。
松山市南斎院町分譲地4号地
| 物件担当の大西 晋平です。 現地へのご案内につきましてはお気軽にお問い合わせください。 自己紹介はこちら |

ボタンをクリックすると、物件近辺からのルート検索、周辺の生活施設の検索が可能です。
| 物件ページQR | |
| 物件周辺地図QR |
その他設備・条件



























お問合せの際は、物件番号No.33015をお知らせいただくとスムーズにご紹介ができますのでよろしくお願い致します。