松山不動産.COM TOPページ > 松山市堀江町 > 堀江町新築戸建
JR予讃線 堀江駅堀江小学校区新築一戸建て2980万円の物件詳細です。
松山市堀江町 新築一戸建て
価格 2,980万円 返済例 月々 円
JR予讃線 堀江駅 徒歩20分
新築一戸建て
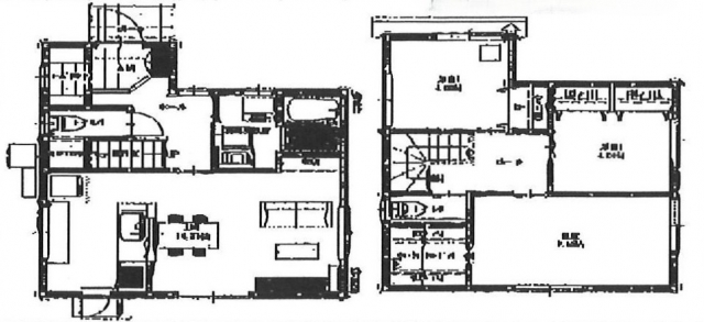
土地面積 160.85㎡(48.66坪) / 建物面積 82.80㎡ / 間取り 3LDK
お問合せの際は、物件番号No.33376をお知らせいただくとスムーズにご紹介ができますのでよろしくお願い致します。
| 物件番号 | 12555 |
|---|---|
| 住所 | 松山市堀江町 |
| 最寄駅 | JR予讃線 堀江駅 徒歩20分 |
| 小学校区 | 堀江小学校区 |
| 中学校区 | 内宮中学校区 |
| 物件名 | 堀江町新築戸建 |
| 建物面積 | 82.80㎡ |
| 築年月日 | 2026年02月 |
| 構造 | 木造 |
| 間取り | 3LDK |
| 建物規模(地上) | 2階 |
| 駐車場 | 3台 |
| 土地面積 | 160.85㎡公簿 |
| 土地権利 | 所有権 |
| 地目 | 宅地 |
| 都市計画 | 市街化区域 |
| 用途地域 | 第一種住居地域 |
| 建ぺい率 | 60% |
| 容積率 | 160% |
| 接道状況 | 北側 幅員4.0m 市道 接面15.8m |
| 備考 | ●太陽光発電(シャープ6.5Kw) ●登記費用・火災保険・融資手数料・外構費用・仲介手数料等別途必要 |
| 設備 | 水道:公営/排水:下水 |
| 現況 | 未完成 |
| 引渡し | - |
| 取引態様 | 仲介 |
| 情報更新日 | 2026/05/05 |
| 次回更新予定日 | 2026/06/04 |
現在の店頭基準金利は2.475%
2980万円 借入期間年/金利%
毎月のお支払い額
円
※頭金0円でボーナス払いなしの場合の金額です。
また、お客様のご条件により金利の優遇幅が変動する場合があります。
また、お客様のご条件により金利の優遇幅が変動する場合があります。
- オール電化・オール電化住宅
- 太陽光発電
松山市堀江町建売

ボタンをクリックすると、物件近辺からのルート検索、周辺の生活施設の検索が可能です。
| 物件ページQR | |
| 物件周辺地図QR |
その他設備・条件




























