松山不動産.COM TOPページ > 松山市築山町 > シビルタワーエンブレム
伊予鉄道市内電車松山市駅線 勝山町駅八坂小学校区中古マンション1300万円の物件詳細です。
松山市築山町 中古マンション
価格 1,300万円 返済例 月々 円
伊予鉄道市内電車松山市駅線 勝山町駅 徒歩10分
中古マンション
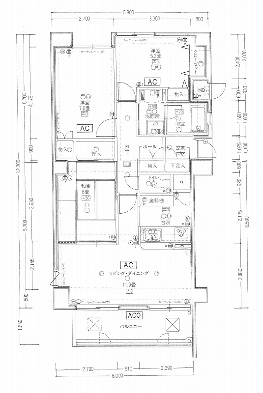
建物面積 75.10㎡ 壁芯 / 間取り 3LDK
お問合せの際は、物件番号NO.33165をお知らせいただくとスムーズにご紹介ができますのでよろしくお願い致します。
| 物件番号 | 12338 |
|---|---|
| 住所 | 松山市築山町 |
| 最寄駅 | 伊予鉄道市内電車松山市駅線 勝山町駅 徒歩10分 |
| 小学校区 | 八坂小学校区 |
| 中学校区 | 東中学校区 |
| 物件名 | シビルタワーエンブレム |
| 建物名 | シビルタワーエンブレム |
| 建物面積 | 75.10㎡ 壁芯 |
| 築年月日 | 1995年12月 |
| 構造 | SRC(鉄骨鉄筋コンクリート) |
| 間取り | 3LDK |
| バルコニー面積 | 8.58㎡ |
| 主要採光面(向き) | 南 |
| 建物規模(地上) | 14階 |
| 所在階 | 2階 |
| 総戸数 | 70 戸 |
| 管理費 | 8860円 |
| 修繕積立金 | 11120円 |
| 駐車場 | 有 区画要確認 6,600円/月 |
| 管理方式 | 日勤管理 |
| 管理形態 | 全部委託 |
| 管理会社 | 合人社計画研究所 |
| 土地権利 | 所有権 |
| 都市計画 | 市街化区域 |
| 用途地域 | 近隣商業地域 |
| 建ぺい率 | 80% |
| 容積率 | 300% |
| 国土法 | 不要 |
| 法令上の制限 | 準防火地域 |
| 備考 | ●エレベーター2基 ●ウォシュレット ●駐車場が機械式の場合、車両制限の確認は必要です。 |
| 設備 | ガス:都市ガス |
| 現況 | 居住中 |
| 引渡し | 相談 |
| 取引態様 | 仲介 |
| 情報更新日 | 2026/02/25 |
| 次回更新予定日 | 2026/03/27 |
現在の店頭基準金利は2.475%
1300万円 借入期間年/金利%
毎月のお支払い額
円
※頭金0円でボーナス払いなしの場合の金額です。
また、お客様のご条件により金利の優遇幅が変動する場合があります。
また、お客様のご条件により金利の優遇幅が変動する場合があります。
シビルタワーエンブレム3LDK

ボタンをクリックすると、物件近辺からのルート検索、周辺の生活施設の検索が可能です。
| 物件ページQR | |
| 物件周辺地図QR |
その他設備・条件




























