松山不動産.COM TOPページ > 松山市北持田町 > ロージュ持田
伊予鉄道市内電車環状線 警察署前駅東雲小学校区中古マンション3800万円の物件詳細です。
松山市北持田町 中古マンション
価格 3,800万円 返済例 月々 円
伊予鉄道市内電車環状線 警察署前駅 徒歩3分
中古マンション
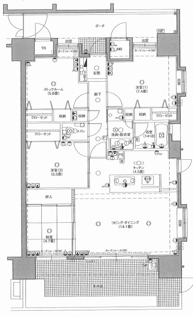
建物面積 92.17㎡ 壁芯 / 間取り 4LDK
お問合せの際は、物件番号NO.33087をお知らせいただくとスムーズにご紹介ができますのでよろしくお願い致します。
| 物件番号 | 12261 |
|---|---|
| 住所 | 松山市北持田町 |
| 最寄駅 | 伊予鉄道市内電車環状線 警察署前駅 徒歩3分 |
| 小学校区 | 東雲小学校区 |
| 中学校区 | 東中学校区 |
| 物件名 | ロージュ持田 |
| 建物名 | ロージュ持田 |
| 建物面積 | 92.17㎡ 壁芯 |
| 築年月日 | 2012年03月 |
| 構造 | RC(鉄筋コンクリート) |
| 間取り | 4LDK |
| バルコニー面積 | 22.99㎡ |
| 建物規模(地上) | 15階 |
| 所在階 | 1階 |
| 総戸数 | 44 戸 |
| 管理費 | 8300円 |
| 修繕積立金 | 4700円 |
| 駐車場 | 有 空き区画・料金は要確認 |
| 管理方式 | 日勤管理 |
| 管理形態 | 全部委託 |
| 管理会社 | ミツワ建物管理 |
| 土地権利 | 所有権 |
| 都市計画 | 市街化区域 |
| 用途地域 | 近隣商業地域 |
| 建ぺい率 | 80% |
| 容積率 | 300% |
| 国土法 | 不要 |
| 法令上の制限 | 準防火地域 |
| 備考 | ●エレベーター1基 ●ウォシュレット ●IHクッキングヒーター ●浴室換気乾燥暖房機 ●BS端子 ●トランクルーム ●駐車場が機械式の場合は車両制限にご注意ください。 ●リフォーム内容:トイレ・全室クロス・床等 |
| 現況 | 空家 |
| 引渡し | 相談 |
| 取引態様 | 仲介 |
| 情報更新日 | 2026/01/06 |
| 次回更新予定日 | 2026/02/05 |
現在の店頭基準金利は2.475%
3800万円 借入期間年/金利%
毎月のお支払い額
円
※頭金0円でボーナス払いなしの場合の金額です。
また、お客様のご条件により金利の優遇幅が変動する場合があります。
また、お客様のご条件により金利の優遇幅が変動する場合があります。
- オール電化・オール電化住宅
- 角部屋
- ペット飼育可
- 南道路につき日当り良好
ロージュ持田4LDK

2025年12月リフォーム♪ 東南角部屋♪ 専用庭付き♪ ペット飼育可能♪ オール電化マンション♪

| 物件担当の上田 基です。 現地へのご案内につきましてはお気軽にお問い合わせください。 自己紹介はこちら |

ボタンをクリックすると、物件近辺からのルート検索、周辺の生活施設の検索が可能です。
| 物件ページQR | |
| 物件周辺地図QR |
その他設備・条件


























