松山不動産.COM TOPページ > 松山市歩行町1丁目 > クレアセトル歩行町
伊予鉄道市内電車松山市駅線 勝山町駅東雲小学校区中古マンション2650万円の物件詳細です。
松山市歩行町1丁目 中古マンション
価格 2,650万円 返済例 月々 円
伊予鉄道市内電車松山市駅線 勝山町駅 徒歩2分
中古マンション
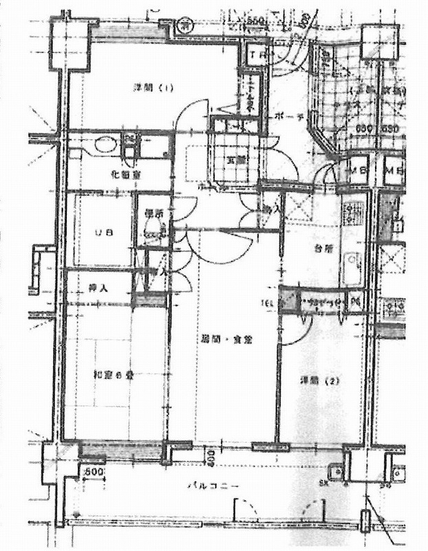
建物面積 70.16㎡ 壁芯 / 間取り 2LDK
お問合せの際は、物件番号NO.33085をお知らせいただくとスムーズにご紹介ができますのでよろしくお願い致します。
| 物件番号 | 12259 |
|---|---|
| 住所 | 松山市歩行町1丁目 |
| 最寄駅 | 伊予鉄道市内電車松山市駅線 勝山町駅 徒歩2分 |
| 小学校区 | 東雲小学校区 |
| 中学校区 | 東中学校区 |
| 物件名 | クレアセトル歩行町 |
| 建物名 | クレアセトル歩行町 |
| 建物面積 | 70.16㎡ 壁芯 |
| 築年月日 | 2001年08月 |
| 構造 | SRC(鉄骨鉄筋コンクリート) |
| 間取り | 2LDK |
| バルコニー面積 | 15.40㎡ |
| 建物規模(地上) | 14階 |
| 所在階 | 2階 |
| 総戸数 | 49 戸 |
| 管理費 | 7700円 |
| 修繕積立金 | 10500円 |
| 駐車場 | 有 空き区画・料金は要確認 |
| 管理方式 | 日勤管理 |
| 管理形態 | 全部委託 |
| 管理会社 | セントラルライフ(株) |
| 土地権利 | 所有権 |
| 都市計画 | 市街化区域 |
| 用途地域 | 近隣商業地域 |
| 建ぺい率 | 80% |
| 容積率 | 300% |
| 国土法 | 不要 |
| 備考 | 用地地域:商業地域 容積率:500% ●エレベーター1基 ●ウォシュレット ●浴室暖房乾燥機 ●CATV ●食器洗浄乾燥機 ●駐車場が機械式の場合、高さ制限などがあります。 ●バイク置場:月額300円 |
| 設備 | ガス:都市ガス |
| 現況 | 空家 |
| 引渡し | 相談 |
| 取引態様 | 仲介 |
| 情報更新日 | 2026/05/06 |
| 次回更新予定日 | 2026/06/05 |
現在の店頭基準金利は2.475%
2650万円 借入期間年/金利%
毎月のお支払い額
円
※頭金0円でボーナス払いなしの場合の金額です。
また、お客様のご条件により金利の優遇幅が変動する場合があります。
また、お客様のご条件により金利の優遇幅が変動する場合があります。
クレアセトル歩行町2LDK

ボタンをクリックすると、物件近辺からのルート検索、周辺の生活施設の検索が可能です。
| 物件ページQR | |
| 物件周辺地図QR |
その他設備・条件




























