松山不動産.COM TOPページ > 松山市別府町 > 別府町戸建
伊予鉄道高浜線 山西駅味生小学校区中古一戸建て2250万円の物件詳細です。
松山市別府町 中古一戸建て
価格 2,250万円 返済例 月々 円
伊予鉄道高浜線 山西駅 徒歩20分
中古一戸建て
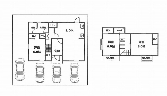
土地面積 177.11㎡(53.58坪) / 建物面積 92.74㎡ / 間取り 3LDK
お問合せの際は、物件番号NO.32952をお知らせいただくとスムーズにご紹介ができますのでよろしくお願い致します。
| 物件番号 | 12131 |
|---|---|
| 住所 | 松山市別府町 |
| 最寄駅 | 伊予鉄道高浜線 山西駅 徒歩20分 |
| 小学校区 | 味生小学校区 |
| 中学校区 | 津田中学校区 |
| 物件名 | 別府町戸建 |
| 建物面積 | 92.74㎡ |
| 築年月日 | 1989年11月 |
| 構造 | 木造 |
| 間取り | 3LDK |
| 建物規模(地上) | 2階 |
| 土地面積 | 177.11㎡公簿 |
| 土地権利 | 所有権 |
| 地目 | 宅地 |
| 都市計画 | 市街化区域 |
| 用途地域 | 第一種低層住居専用地域 |
| 建ぺい率 | 60% |
| 容積率 | 200% |
| 国土法 | 不要 |
| 接道状況 | 南 幅員:約4.0m 接面:約13.3m 松山市道味生196号線 |
| 備考 | ●令和7年8月大規模リフォーム:外壁屋根塗装工事・水回り新設・全室クロス張替・玄関ドア新設・外構工事等) ●セブンスター別府店まで約850m・マルナカ清住店まで約850m |
| 設備 | 水道:公営/ガス:プロパン/排水:下水 |
| 現況 | 空家 |
| 引渡し | 相談 |
| 取引態様 | 仲介 |
| 情報更新日 | 2026/04/28 |
| 次回更新予定日 | 2026/05/28 |
現在の店頭基準金利は2.475%
2250万円 借入期間年/金利%
毎月のお支払い額
円
※頭金0円でボーナス払いなしの場合の金額です。
また、お客様のご条件により金利の優遇幅が変動する場合があります。
また、お客様のご条件により金利の優遇幅が変動する場合があります。
別府町土地

ボタンをクリックすると、物件近辺からのルート検索、周辺の生活施設の検索が可能です。
| 物件ページQR | |
| 物件周辺地図QR |
その他設備・条件




























