松山不動産.COM TOPページ > 松山市清住2丁目 > 清住2丁目戸建
伊予鉄道高浜線 山西駅味生小学校区中古一戸建て2350万円の物件詳細です。
松山市清住2丁目 中古一戸建て
価格 2,350万円 返済例 月々 円
伊予鉄道高浜線 山西駅 徒歩12分
中古一戸建て
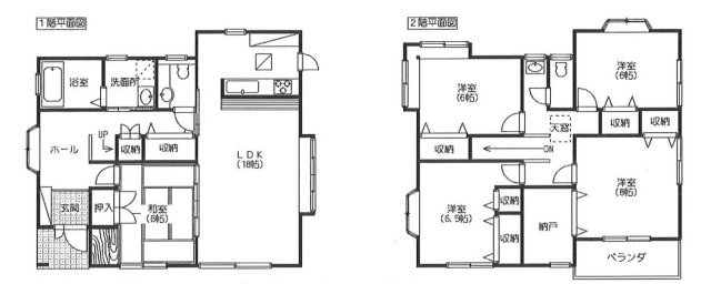
土地面積 148.57㎡(44.94坪) / 建物面積 133.31㎡ / 間取り 5SLDK| 物件番号 | 11850 |
|---|---|
| 住所 | 松山市清住2丁目 |
| 最寄駅 | 伊予鉄道高浜線 山西駅 徒歩12分 |
| 小学校区 | 味生小学校区 |
| 中学校区 | 津田中学校区 |
| 物件名 | 清住2丁目戸建 |
| 建物面積 | 133.31㎡ |
| 築年月日 | 1996年11月 |
| 構造 | 木造 |
| 間取り | 5SLDK |
| 建物規模(地上) | 2階 |
| 駐車場 | 2台 |
| 土地面積 | 148.57㎡公簿 |
| 土地権利 | 所有権 |
| 地目 | 宅地 |
| 都市計画 | 市街化区域 |
| 用途地域 | 第一種住居地域 |
| 建ぺい率 | 60% |
| 容積率 | 200% |
| 接道状況 | 角地 北・西 |
| 備考 | ●西:松山市道 味生237号線 北:開発道路(所有者:松山市) ●東側の里道は建築基準法の道路ではありません ●リフォーム内容:屋根・外壁全面塗装、クロス貼替、畳表側、駐車場拡張、リビングエアコン新設、美装 |
| 設備 | 水道:公営/ガス:プロパン/排水:浄化槽 |
| 現況 | 空家 |
| 引渡し | 相談 |
| 取引態様 | 仲介 |
| 情報更新日 | 2025/11/27 |
| 次回更新予定日 | 2025/12/27 |
現在の店頭基準金利は2.475%
2350万円 借入期間年/金利%
毎月のお支払い額
円
※頭金0円でボーナス払いなしの場合の金額です。
また、お客様のご条件により金利の優遇幅が変動する場合があります。
また、お客様のご条件により金利の優遇幅が変動する場合があります。
- 角地
松山市清住2丁目売戸建

ボタンをクリックすると、物件近辺からのルート検索、周辺の生活施設の検索が可能です。
| 物件ページQR | |
| 物件周辺地図QR |
その他設備・条件





























お問合せの際は、物件番号No.32680をお知らせいただくとスムーズにご紹介ができますのでよろしくお願い致します。