松山市北土居5丁目 中古一戸建て
価格 4,480万円返済例 月々 円
中古一戸建て
JR予讃線 市坪駅 徒歩36分
|
|
| 物件番号 | 9851 |
|---|---|
| 住所 | 松山市北土居5丁目 |
| 最寄駅 | JR予讃線 市坪駅 徒歩36分 |
| 小学校区 | 石井小学校区 |
| 中学校区 | 南中学校区 |
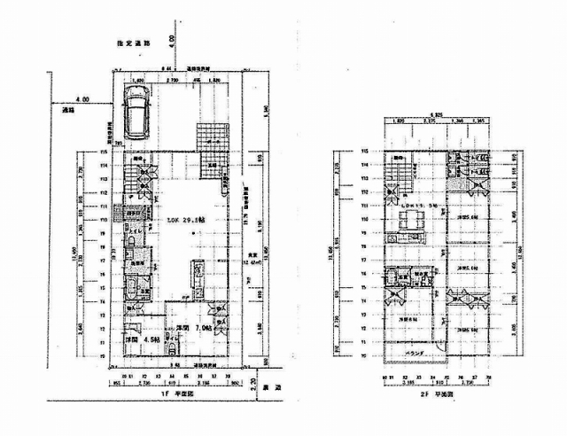
| 建物面積 | 182.59㎡ |
| 築年月日 | 2019年05月 |
| 構造 | 木造 |
| 間取り | 6LDK |
| 管理費 | - |
| 修繕積立金 | - |
| 駐車場 | 2台 |
| 管理形態 | - |
| 土地面積 | 169.40㎡公簿 |
| 土地権利 | 所有権 |
| 地目 | 宅地 |
| 都市計画 | 市街化区域 |
| 用途地域 | 第一種住居地域 |
| 建ぺい率 | 60% |
| 容積率 | 160% |
| 接道状況 | 北 幅員約4m 私道 接面約8.4m |
| 備考 | ●北側道路は位置指定道路 ●西側道路は私道 ●1階は事務所としても利用可能 ●事務所付き住宅 |
| 設備 | 水道:公営/ガス:プロパン/排水:浄化槽 |
| 現況 | 空家 |
| 引渡し | 即時 |
| 取引態様 | 仲介 |
| 情報更新日 | 2025/11/19 |
| 次回更新予定日 | 2025/12/19 |
現在の店頭基準金利は2.475%
万円 借入期間年 金利%
毎月のお支払い額円
※頭金0円で10年固定(ボーナス払いなし)の場合の金額です。
北土居5丁目 売戸建
築浅物件♪完全2世帯住宅♪
| 物件担当の大堀 聡です。 現地へのご案内につきましてはお気軽にお問い合わせください。 |
石井小学校区
南中学校区
