松山市古川北4丁目 土地
価格 1,632.95万円返済例 月々 円
土地
JR予讃線 市坪駅 徒歩21分
土地面積 118.66 / 建物面積 0.00㎡ / 間取り --
|
|
| 物件番号 | 12721 |
|---|---|
| 住所 | 松山市古川北4丁目 |
| 最寄駅 | JR予讃線 市坪駅 徒歩21分 |
| 小学校区 | 椿小学校区 |
| 中学校区 | 椿中学校区 |
| 建物面積 | 0.00㎡ |
| 管理費 | - |
| 修繕積立金 | - |
| 管理形態 | - |
| 土地面積 | 118.66㎡ |
| 土地権利 | 所有権 |
| 地目 | 宅地 |
| 地勢 | 平坦 |
| 都市計画 | 市街化区域 |
| 用途地域 | 第一種低層住居専用地域 |
| 建ぺい率 | 50% |
| 容積率 | 80% |
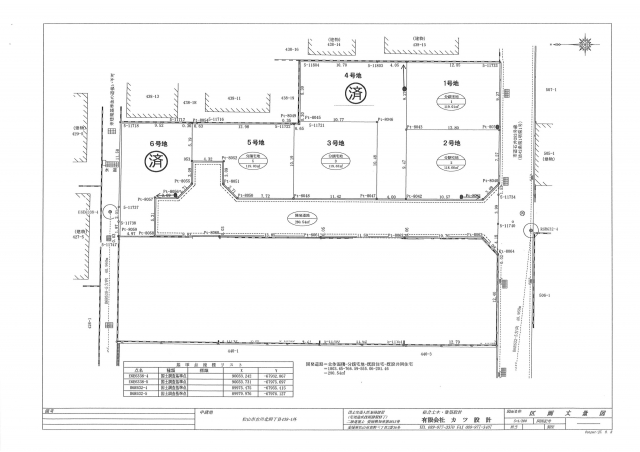
| 備考 | ●全6区画の新規分譲地 ※建築協定有 ●人気エリア・生活便利 ●開発道路(道路幅員約5.3mと広々) ●上水道負担金35万円 ●下水道受益者負担金250円/m2 ●境界基礎・ブロック塀費用負担有り |
| 建築条件 | 付 |
| 設備 | 水道:公営/ガス:プロパン/排水:下水 |
| 現況 | 未完成 |
| 引渡し | 期日指定 |
| 取引態様 | 仲介 |
| 情報更新日 | 2026/04/28 |
| 次回更新予定日 | 2026/05/28 |
現在の店頭基準金利は2.475%
万円 借入期間年 金利%
毎月のお支払い額円
※頭金0円で10年固定(ボーナス払いなし)の場合の金額です。
古川北4丁目土地 2号地
人気エリア!
利便性良く生活便利!
| 物件担当の大堀 聡です。 現地へのご案内につきましてはお気軽にお問い合わせください。 |
椿小学校区
椿中学校区
