松山市辰巳町 中古マンション
価格 1,000万円返済例 月々 円
中古マンション
伊予鉄道高浜線 三津駅 徒歩5分
|
|
|
| 物件番号 | 12675 |
|---|---|
| 住所 | 松山市辰巳町 |
| 最寄駅 | 伊予鉄道高浜線 三津駅 徒歩5分 |
| 小学校区 | 宮前小学校区 |
| 中学校区 | 三津浜中学校区 |
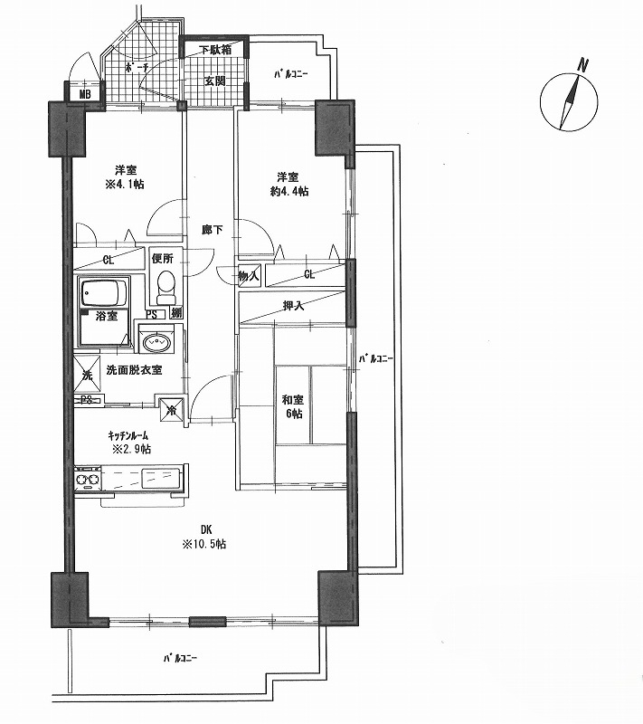
| 建物面積 | 62.50㎡ 壁芯 |
| 築年月日 | 1990年02月 |
| 構造 | SRC(鉄骨鉄筋コンクリート) |
| 間取り | 3LDK |
| バルコニー面積 | 9.45㎡㎡ |
| 建物規模(地上) | 14階 |
| 所在階 | 9階 |
| 総戸数 | 125 戸 |
| 管理費 | 7500円 |
| 修繕積立金 | 14860円 |
| 駐車場 | 有 空き区画は要確認 4,000円/月 |
| 管理方式 | 日勤管理 |
| 管理形態 | 全部委託 |
| 管理会社 | 穴吹ハウジングサービス |
| 土地権利 | 所有権 |
| 都市計画 | 市街化区域 |
| 用途地域 | 工業地域 |
| 建ぺい率 | 60% |
| 容積率 | 200% |
| 国土法 | 不要 |
| 備考 | ●エレベーター2基 ●自転車:月額100~200円 ●バイク:月額300~600円 |
| 設備 | ガス:都市ガス |
| 現況 | 居住中 |
| 引渡し | 相談 |
| 取引態様 | 仲介 |
| 情報更新日 | 2026/05/11 |
| 次回更新予定日 | 2026/06/10 |
現在の店頭基準金利は2.475%
万円 借入期間年 金利%
毎月のお支払い額円
※頭金0円で10年固定(ボーナス払いなし)の場合の金額です。
- 角部屋
- 南道路につき日当り良好
サーパス三津壱番館
東南角部屋♪ 日当たり・眺望良好♪
| 物件担当の上田 基です。 現地へのご案内につきましてはお気軽にお問い合わせください。 |
宮前小学校区
三津浜中学校区
