松山市石手3丁目 中古マンション
価格 1,590万円返済例 月々 円
中古マンション
伊予鉄道市内電車松山市駅線 道後公園駅 徒歩17分
|
|
|
| 物件番号 | 12638 |
|---|---|
| 住所 | 松山市石手3丁目 |
| 最寄駅 | 伊予鉄道市内電車松山市駅線 道後公園駅 徒歩17分 |
| 小学校区 | 道後小学校区 |
| 中学校区 | 道後中学校区 |
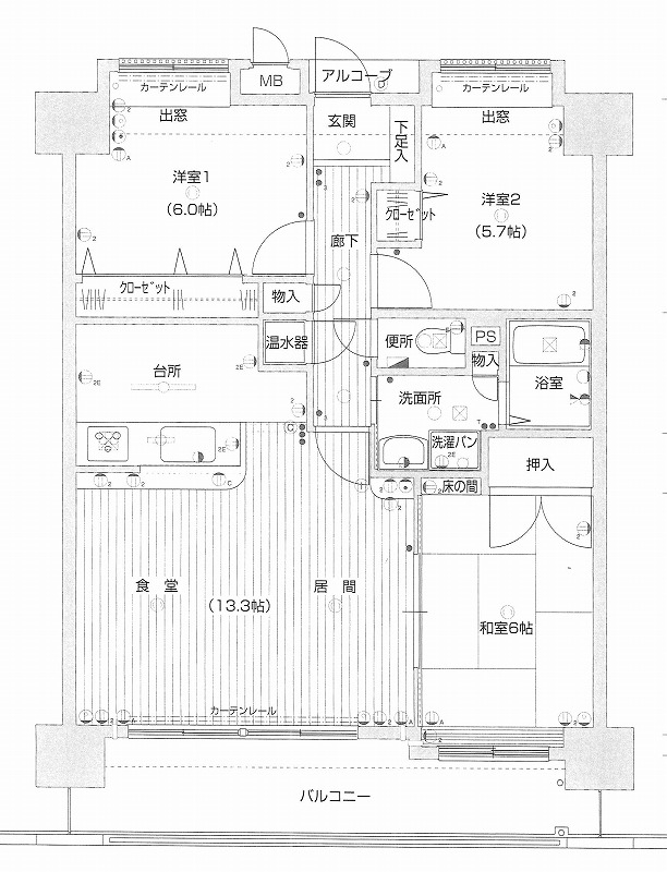
| 建物面積 | 75.88㎡ 壁芯 |
| 築年月日 | 2000年03月 |
| 構造 | RC(鉄筋コンクリート) |
| 間取り | 3LDK |
| バルコニー面積 | 11.80㎡㎡ |
| 建物規模(地上) | 15階 |
| 所在階 | 4階 |
| 総戸数 | 43 戸 |
| 管理費 | 8100円 |
| 修繕積立金 | 9110円 |
| 駐車場 | 有 空き区画・料金要確認 |
| 管理方式 | 日勤管理 |
| 管理形態 | 全部委託 |
| 管理会社 | (株)ロージュコミュニティ |
| 土地権利 | 所有権 |
| 都市計画 | 市街化区域 |
| 用途地域 | 第一種中高層住居専用地域 |
| 建ぺい率 | 60% |
| 容積率 | 200% |
| 国土法 | 不要 |
| 備考 | ●エレベーター1基 ●ウォシュレット ●電気温水器 ●IHクッキングヒーター |
| 現況 | 空家 |
| 引渡し | 相談 |
| 取引態様 | 仲介 |
| 情報更新日 | 2026/03/29 |
| 次回更新予定日 | 2026/04/28 |
現在の店頭基準金利は2.475%
万円 借入期間年 金利%
毎月のお支払い額円
※頭金0円で10年固定(ボーナス払いなし)の場合の金額です。
- オール電化・オール電化住宅
ロージュ道後
免震構造マンション♪ オール電化♪
| 物件担当の上田 基です。 現地へのご案内につきましてはお気軽にお問い合わせください。 |
道後小学校区
道後中学校区
