松山市小栗5丁目 中古マンション
価格 3,580万円返済例 月々 円
中古マンション
伊予鉄道郡中線 土橋駅 徒歩7分
|
|
|
| 物件番号 | 12572 |
|---|---|
| 住所 | 松山市小栗5丁目 |
| 最寄駅 | 伊予鉄道郡中線 土橋駅 徒歩7分 |
| 小学校区 | 雄郡小学校区 |
| 中学校区 | 雄新中学校区 |
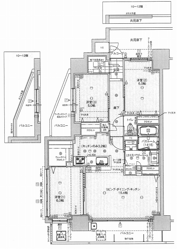
| 建物面積 | 76.60㎡ 壁芯 |
| 築年月日 | 2022年09月 |
| 構造 | RC(鉄筋コンクリート) |
| 間取り | 3LDK |
| バルコニー面積 | 16.03㎡㎡ |
| 主要採光面(向き) | 南 |
| 建物規模(地上) | 12階 |
| 所在階 | 10階 |
| 総戸数 | 48 戸 |
| 管理費 | 8000円 |
| 修繕積立金 | 5000円 |
| 駐車場 | 有 空き区画・料金は要確認 |
| 管理方式 | 日勤管理 |
| 管理形態 | 全部委託 |
| 管理会社 | 穴吹ハウジングサービス |
| 土地権利 | 所有権 |
| 都市計画 | 市街化区域 |
| 用途地域 | 第一種住居地域 |
| 建ぺい率 | 60% |
| 容積率 | 200% |
| 国土法 | 不要 |
| 備考 | ●エレベーター1基 ●ウォシュレット ●食器洗浄乾燥機 ●浴室換気乾燥暖房機 ●ウォークインクローゼット ●災害積立金:月額300円 ●駐車場が機械式の場合、車両制限にご注意ください。 |
| 設備 | ガス:都市ガス |
| 現況 | 居住中 |
| 引渡し | 相談 |
| 取引態様 | 仲介 |
| 情報更新日 | 2026/04/08 |
| 次回更新予定日 | 2026/05/08 |
現在の店頭基準金利は2.475%
万円 借入期間年 金利%
毎月のお支払い額円
※頭金0円で10年固定(ボーナス払いなし)の場合の金額です。
- 角部屋
- ペット飼育可
アルファスマート雄郡
南西角部屋♪ 生活便利な立地♪ ペット飼育可能♪
| 物件担当の上田 基です。 現地へのご案内につきましてはお気軽にお問い合わせください。 |
雄郡小学校区
雄新中学校区
