松山市小栗1丁目 中古一戸建て
価格 1,980万円返済例 月々 円
中古一戸建て
伊予鉄道横河原線 石手川公園駅 徒歩11分
|
|
| 物件番号 | 12456 |
|---|---|
| 住所 | 松山市小栗1丁目 |
| 最寄駅 | 伊予鉄道横河原線 石手川公園駅 徒歩11分 |
| 小学校区 | 雄郡小学校区 |
| 中学校区 | 雄新中学校区 |
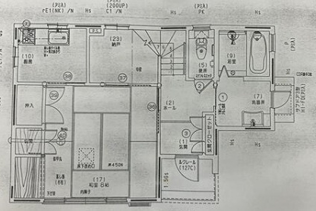
| 建物面積 | 96.80㎡ |
| 築年月日 | 1998年11月 |
| 構造 | 軽量鉄骨造 |
| 間取り | 3LDK |
| 建物規模(地上) | 2階 |
| 管理費 | - |
| 修繕積立金 | - |
| 駐車場 | 2台 |
| 管理形態 | - |
| 土地面積 | 87.30㎡ |
| 土地権利 | 所有権 |
| 地目 | 宅地 |
| 都市計画 | 市街化区域 |
| 用途地域 | 第一種住居地域 |
| 建ぺい率 | 60% |
| 容積率 | 200% |
| 国土法 | 不要 |
| 法令上の制限 | 準防火地域・埋蔵文化財包蔵地・宅地造成規制区域 |
| 接道状況 | 南 幅員:3.8m 私道 接面:9m |
| 備考 | ●飲用水は井戸水で断水時も使用可能 ●地震に津陽、軽量鉄骨造(大手ハウスメーカー)の建物 |
| 現況 | 空家 |
| 引渡し | 相談 |
| 取引態様 | 仲介 |
| 情報更新日 | 2026/04/15 |
| 次回更新予定日 | 2026/05/15 |
現在の店頭基準金利は2.475%
万円 借入期間年 金利%
毎月のお支払い額円
※頭金0円で10年固定(ボーナス払いなし)の場合の金額です。
小栗1丁目戸建
小学校・中学校・高校・スーパー・病院・市内中心部まで、徒歩圏内で生活できます!
| 物件担当の大堀 聡です。 現地へのご案内につきましてはお気軽にお問い合わせください。 |
雄郡小学校区
雄新中学校区
