松山市北梅本町 中古一戸建て
価格 2,980万円返済例 月々 円
中古一戸建て
伊予鉄道横河原線 梅本駅四国がんセンター前駅 徒歩7分
|
|
| 物件番号 | 12453 |
|---|---|
| 住所 | 松山市北梅本町 |
| 最寄駅 | 伊予鉄道横河原線 梅本駅四国がんセンター前駅 徒歩7分 |
| 小学校区 | 小野小学校区 |
| 中学校区 | 小野中学校区 |
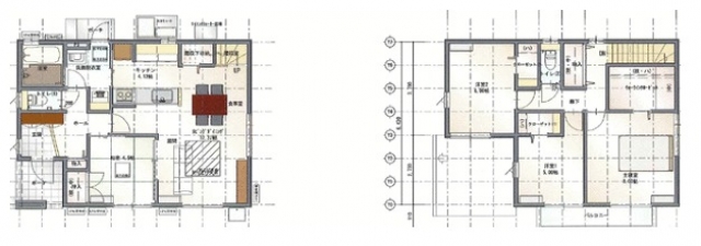
| 建物面積 | 109.51㎡ |
| 築年月日 | 2014年07月 |
| 構造 | 軽量鉄骨造 |
| 間取り | 4LDK |
| 建物規模(地上) | 2階 |
| 管理費 | - |
| 修繕積立金 | - |
| 駐車場 | 2台 |
| 管理形態 | - |
| 土地面積 | 153.80㎡公簿 |
| 土地権利 | 所有権 |
| 地目 | 宅地 |
| 都市計画 | 市街化区域 |
| 用途地域 | 第一種住居地域 |
| 建ぺい率 | 60% |
| 容積率 | 200% |
| 国土法 | 不要 |
| 接道状況 | 西 幅員:約5m 接面:約11m 開発道路42条1項2号 ・ 東 幅員:約5m 接面:約8.7m 開発道路42条1項2号 |
| 備考 | ●居住中ですが、内見ご希望の方は日程ご相談させていただきます。 ●IH・キッチンカウンター・食器洗浄乾燥機・浴室暖房乾燥・太陽光発電システム・EV充電装置・宅配BOX・ウッドデッキ・人口芝の庭 |
| 現況 | 居住中 |
| 引渡し | 相談 |
| 取引態様 | 仲介 |
| 情報更新日 | 2026/02/14 |
| 次回更新予定日 | 2026/03/16 |
現在の店頭基準金利は2.475%
万円 借入期間年 金利%
毎月のお支払い額円
※頭金0円で10年固定(ボーナス払いなし)の場合の金額です。
- オール電化・オール電化住宅
北梅本町戸建
小中学校徒歩約5分・梅本駅徒歩約7分・バス停約2分!
| 物件担当の冨田 昌寛です。 現地へのご案内につきましてはお気軽にお問い合わせください。 |
小野小学校区
小野中学校区
