松山市本町3丁目 中古マンション
価格 2,180万円返済例 月々 円
中古マンション
伊予鉄道市内電車本町線 本町三丁目駅 徒歩1分
|
|
|
| 物件番号 | 12353 |
|---|---|
| 住所 | 松山市本町3丁目 |
| 最寄駅 | 伊予鉄道市内電車本町線 本町三丁目駅 徒歩1分 |
| 小学校区 | 味酒小学校区 |
| 中学校区 | 勝山中学校区 |
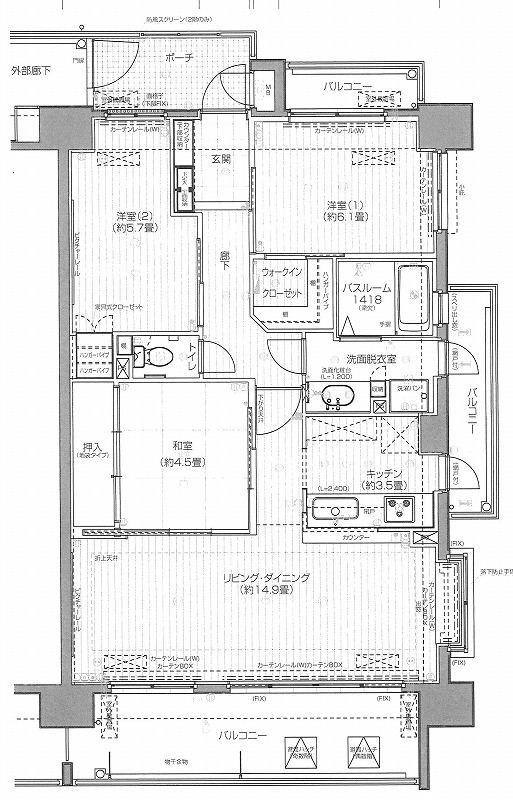
| 建物面積 | 79.20㎡ 壁芯 |
| 築年月日 | 2005年01月 |
| 構造 | RC(鉄筋コンクリート) |
| 間取り | 3LDK |
| バルコニー面積 | 19.15㎡㎡ |
| 建物規模(地上) | 12階 |
| 所在階 | 8階 |
| 総戸数 | 42 戸 |
| 管理費 | 11000円 |
| 修繕積立金 | 21000円 |
| 駐車場 | 有 空き区画・料金は要確認 |
| 管理方式 | 日勤管理 |
| 管理形態 | 全部委託 |
| 管理会社 | 穴吹コミュニティ |
| 土地権利 | 所有権 |
| 都市計画 | 市街化区域 |
| 用途地域 | 商業地域 |
| 建ぺい率 | 80% |
| 容積率 | 400% |
| 国土法 | 不要 |
| 備考 | ●エレベーター1基 ●浴室乾燥機 ●ウォシュレット ●インターネット使用料:月額2,835円 ●CATV使用料:月額550円 ●駐車場が機械式の場合は車両制限にご注意ください。 |
| 設備 | ガス:都市ガス |
| 現況 | 空家 |
| 引渡し | 相談 |
| 取引態様 | 仲介 |
| 情報更新日 | 2026/01/30 |
| 次回更新予定日 | 2026/03/01 |
現在の店頭基準金利は2.475%
万円 借入期間年 金利%
毎月のお支払い額円
※頭金0円で10年固定(ボーナス払いなし)の場合の金額です。
- 角部屋
- 南道路につき日当り良好
サーパス本町
東南角部屋♪ 日当たり良好♪ 交通・生活便利な立地♪
| 物件担当の上田 基です。 現地へのご案内につきましてはお気軽にお問い合わせください。 |
味酒小学校区
勝山中学校区
