松山市北斎院町 中古一戸建て
価格 1,880万円返済例 月々 円
中古一戸建て
伊予鉄道高浜線 山西駅 徒歩31分
|
|
| 物件番号 | 12287 |
|---|---|
| 住所 | 松山市北斎院町 |
| 最寄駅 | 伊予鉄道高浜線 山西駅 徒歩31分 |
| 小学校区 | 味生第二小学校区 |
| 中学校区 | 津田中学校区 |
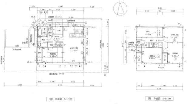
| 建物面積 | 104.34㎡ |
| 築年月日 | 2010年04月 |
| 構造 | 木造 |
| 間取り | 4SLDK |
| 建物規模(地上) | 2階 |
| 管理費 | - |
| 修繕積立金 | - |
| 駐車場 | 3台 庭を触れば軽1台追加可能 |
| 管理形態 | - |
| 土地面積 | 135.67㎡ |
| 土地権利 | 所有権 |
| 地目 | 宅地 |
| 都市計画 | 市街化区域 |
| 用途地域 | 第一種低層住居専用地域 |
| 建ぺい率 | 50% |
| 容積率 | 80% |
| 接道状況 | 北 幅員4m 公道 接面17.1m |
| 備考 | ・駐車場縦列部分(縦9.3m×横3.2m) ・地元工務店施工 |
| 設備 | 水道:公営/排水:下水 |
| 現況 | 居住中 |
| 引渡し | 相談 |
| 取引態様 | 仲介 |
| 情報更新日 | 2026/01/13 |
| 次回更新予定日 | 2026/02/12 |
現在の店頭基準金利は2.475%
万円 借入期間年 金利%
毎月のお支払い額円
※頭金0円で10年固定(ボーナス払いなし)の場合の金額です。
北斎院町戸建
●南面日当良好・綺麗に使われています!!
●R3外壁・屋根塗装、R4給湯器交換、R71Fトイレ・洗面台・レンジフード・コンロ交換
●P縦列2台・軽1台(庭を触れば軽1台追加可)
| 物件担当の大西 晋平です。 現地へのご案内につきましてはお気軽にお問い合わせください。 |
味生第二小学校区
津田中学校区
