松山市古川西2丁目 中古マンション
価格 1,940万円返済例 月々 円
中古マンション
JR予讃線 市坪駅 徒歩13分
|
|
|
| 物件番号 | 12253 |
|---|---|
| 住所 | 松山市古川西2丁目 |
| 最寄駅 | JR予讃線 市坪駅 徒歩13分 |
| 小学校区 | 椿小学校区 |
| 中学校区 | 椿中学校区 |
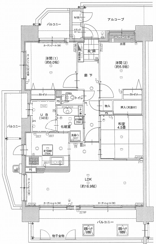
| 建物面積 | 72.90㎡ 壁芯 |
| 築年月日 | 2009年02月 |
| 構造 | RC(鉄筋コンクリート) |
| 間取り | 3LDK |
| バルコニー面積 | 25.98㎡㎡ |
| 建物規模(地上) | 11階 |
| 所在階 | 4階 |
| 総戸数 | 34 戸 |
| 管理費 | 9700円 |
| 修繕積立金 | 4300円 |
| 駐車場 | 有 空き区画・料金は要確認 2,000~5,000円/月 |
| 管理方式 | 日勤管理 |
| 管理形態 | 全部委託 |
| 管理会社 | グランディアビル管理 |
| 土地権利 | 所有権 |
| 都市計画 | 市街化区域 |
| 用途地域 | 第一種住居地域 |
| 建ぺい率 | 60% |
| 容積率 | 200% |
| 国土法 | 不要 |
| 備考 | ●エレベーター1基 ●ウォシュレット ●IHクッキングヒーター ●浴室換気乾燥機 ●BS端子 ●トランクルーム ●駐車場が機械式の場合、車両制限の確認が必要です。 |
| 設備 | ガス:プロパン |
| 現況 | 居住中 |
| 引渡し | 相談 |
| 取引態様 | 仲介 |
| 情報更新日 | 2026/01/06 |
| 次回更新予定日 | 2026/02/05 |
現在の店頭基準金利は2.475%
万円 借入期間年 金利%
毎月のお支払い額円
※頭金0円で10年固定(ボーナス払いなし)の場合の金額です。
- 角部屋
- 南道路につき日当り良好
エルフォーガーデン西椿
南西角部屋♪ 日当たり良好♪ ペット飼育可♪ スーパー・学校・公園が近く、子育て環境良好♪
| 物件担当の上田 基です。 現地へのご案内につきましてはお気軽にお問い合わせください。 |
椿小学校区
椿中学校区
