松山市湊町1丁目 中古マンション
価格 2,650万円返済例 月々 円
中古マンション
伊予鉄道市内電車松山市駅線 勝山町駅 徒歩9分
|
|
|
| 物件番号 | 12201 |
|---|---|
| 住所 | 松山市湊町1丁目 |
| 最寄駅 | 伊予鉄道市内電車松山市駅線 勝山町駅 徒歩9分 |
| 小学校区 | 八坂小学校区 |
| 中学校区 | 東中学校区 |
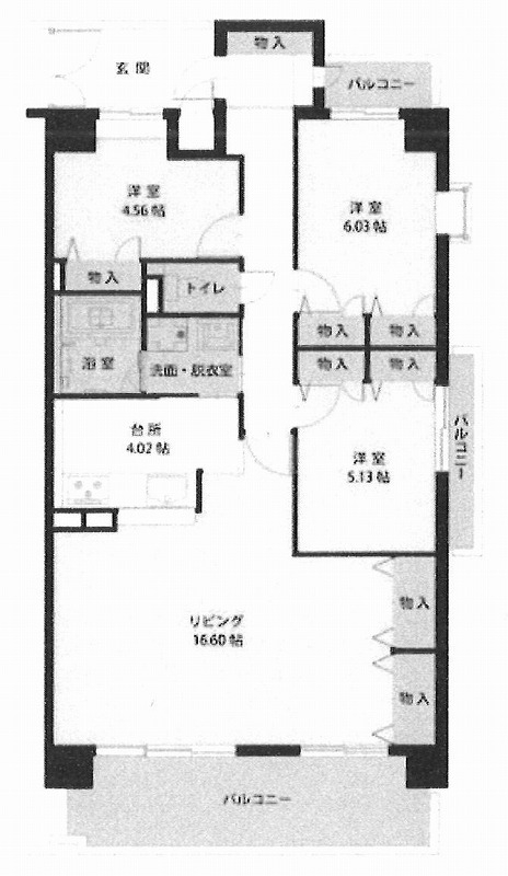
| 建物面積 | 84.50㎡ 壁芯 |
| 築年月日 | 1998年11月 |
| 構造 | SRC(鉄骨鉄筋コンクリート) |
| 間取り | 3LDK |
| バルコニー面積 | 16.33㎡㎡ |
| 建物規模(地上) | 13階 |
| 所在階 | 10階 |
| 総戸数 | 47 戸 |
| 管理費 | 6300円 |
| 修繕積立金 | 12500円 |
| 駐車場 | 有 空き区画・料金は要確認 |
| 管理方式 | 日勤管理 |
| 管理形態 | 全部委託 |
| 管理会社 | 穴吹ハウジングサービス |
| 土地権利 | 所有権 |
| 都市計画 | 市街化区域 |
| 用途地域 | 商業地域 |
| 建ぺい率 | 80% |
| 容積率 | 400% |
| 国土法 | 不要 |
| 法令上の制限 | 準防火地域 |
| 備考 | ●エレベーター1基 ●ウォシュレット ●食器洗浄乾燥機 ●浴室乾燥機 ●BS端子 ●リフォーム内容:キッチン・トイレ・洗面台交換・内装全面(床・壁・天井・建具) |
| 設備 | ガス:都市ガス |
| 現況 | 空家 |
| 引渡し | 相談 |
| 取引態様 | 仲介 |
| 情報更新日 | 2026/04/13 |
| 次回更新予定日 | 2026/05/13 |
現在の店頭基準金利は2.475%
万円 借入期間年 金利%
毎月のお支払い額円
※頭金0円で10年固定(ボーナス払いなし)の場合の金額です。
- 角部屋
- 南道路につき日当り良好
ジョイフルプラザ湊町
上層階、東南角部屋♪ 日当たり良好♪ 市内中心地区♪ 2025年リフォーム♪
| 物件担当の上田 基です。 現地へのご案内につきましてはお気軽にお問い合わせください。 |
八坂小学校区
東中学校区
