松山市北久米町 中古一戸建て
価格 2,200万円返済例 月々 円
中古一戸建て
伊予鉄道横河原線 北久米駅 徒歩6分
|
|
| 物件番号 | 11732 |
|---|---|
| 住所 | 松山市北久米町 |
| 最寄駅 | 伊予鉄道横河原線 北久米駅 徒歩6分 |
| 小学校区 | 北久米小学校区 |
| 中学校区 | 久米中学校区 |
| 建物面積 | 110.10㎡ |
| 築年月日 | 1979年11月 |
| 構造 | 木造 |
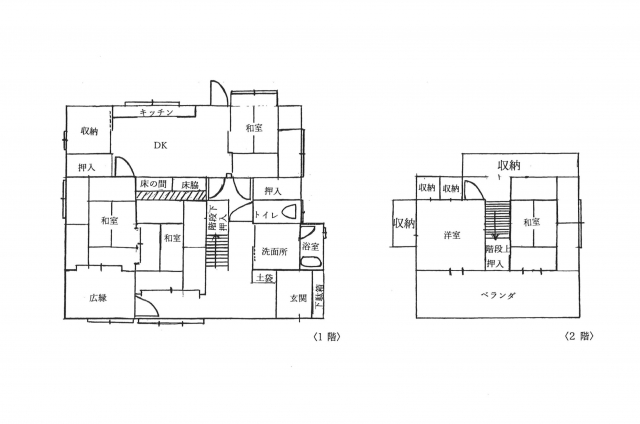
| 間取り | 5SDK |
| 間取り内訳 | 5SDK+広縁 |
| 建物規模(地上) | 2階 |
| 管理費 | - |
| 修繕積立金 | - |
| 管理形態 | - |
| 土地面積 | 199.65㎡公簿 |
| 土地権利 | 所有権 |
| 地目 | 宅地 |
| 都市計画 | 市街化区域 |
| 用途地域 | 第一種低層住居専用地域 |
| 建ぺい率 | 50% |
| 容積率 | 80% |
| 接道状況 | 南:幅員約4m(開発道路S53-72) 東:幅員約3.4m(松山市道久米5号線) |
| 備考 | ※南側道路で陽当り良好 ※福音寺バス停徒歩5分・北久米駅電停徒歩6分 ※建て替え時に狭あい協議必要 ※内水・ため池(新池)ハザードマップ、宅地造成等工事規制区域に該当。 ※東側道路との間に水路があります。 |
| 設備 | 水道:公営/ガス:プロパン/排水:下水 |
| 現況 | 空家 |
| 引渡し | 相談 |
| 取引態様 | 仲介 |
| 情報更新日 | 2026/04/25 |
| 次回更新予定日 | 2026/05/25 |
現在の店頭基準金利は2.475%
万円 借入期間年 金利%
毎月のお支払い額円
※頭金0円で10年固定(ボーナス払いなし)の場合の金額です。
- 角地
- 東南角地
- 南道路につき日当り良好
北久米町戸建
南面道路で陽当り良好♪
スーパー、コンビニ、小学校近く♪
| 物件担当の冨田 昌寛です。 現地へのご案内につきましてはお気軽にお問い合わせください。 |
北久米小学校区
久米中学校区
