松山市ひばりヶ丘 中古一戸建て
価格 1,380万円返済例 月々 円
中古一戸建て
JR予讃線 三津浜駅 徒歩4分
|
|
| 物件番号 | 11626 |
|---|---|
| 住所 | 松山市ひばりヶ丘 |
| 最寄駅 | JR予讃線 三津浜駅 徒歩4分 |
| 小学校区 | みどり小学校区 |
| 中学校区 | 三津浜中学校区 |
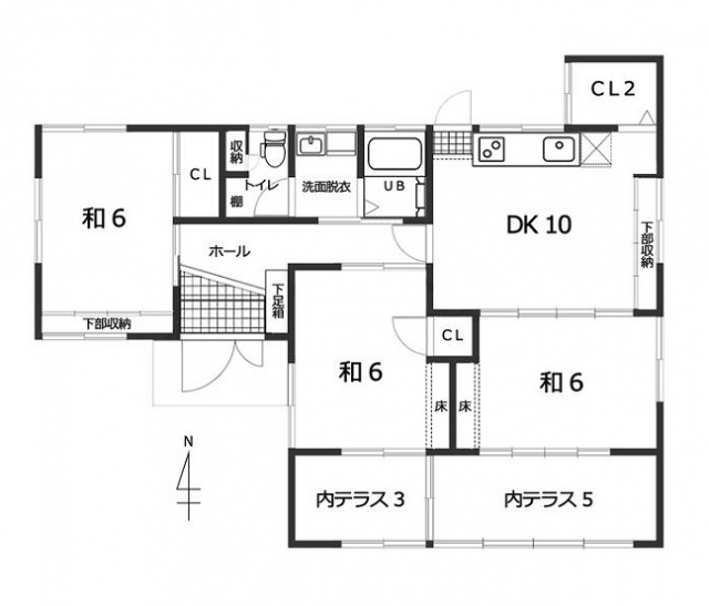
| 建物面積 | 78.55㎡ |
| 築年月日 | 1967年02月 |
| 構造 | 木造 |
| 間取り | 3SDK |
| 建物規模(地上) | 1階 |
| 管理費 | - |
| 修繕積立金 | - |
| 駐車場 | 有 |
| 管理形態 | - |
| 土地面積 | 200.59㎡公簿 |
| 土地権利 | 所有権 |
| 地目 | 宅地 |
| 地勢 | 平坦 |
| 都市計画 | 市街化区域 |
| 用途地域 | 第一種住居地域 |
| 建ぺい率 | 70% |
| 容積率 | 200% |
| 国土法 | 不要 |
| 接道状況 | 南 幅員:約4.0m 公道 接道:約12.8m ・ 西 幅員:約3.9m 公道 接道:約11.4m |
| 備考 | ●売土地(更地渡し・建築条件なし)としてもご検討可能です。 ●角地緩和適用の為、建ぺい率70% ●リフォーム履歴あり |
| 設備 | 水道:公営/ガス:プロパン/排水:下水 |
| 現況 | 居住中 |
| 引渡し | 相談 |
| 取引態様 | 仲介 |
| 情報更新日 | 2025/12/04 |
| 次回更新予定日 | 2026/01/03 |
現在の店頭基準金利は2.475%
万円 借入期間年 金利%
毎月のお支払い額円
※頭金0円で10年固定(ボーナス払いなし)の場合の金額です。
ひばりヶ丘戸建
中古戸建としても売土地としても検討可能! 便利性の高い立地ですが閑静な住宅地です♪
| 物件担当の大西 晋平です。 現地へのご案内につきましてはお気軽にお問い合わせください。 |
みどり小学校区
三津浜中学校区
