松山市御幸1丁目 中古一戸建て
価格 1,500万円返済例 月々 円
中古一戸建て
伊予鉄道市内電車環状線 木屋町駅 徒歩16分
|
|
| 物件番号 | 11556 |
|---|---|
| 住所 | 松山市御幸1丁目 |
| 最寄駅 | 伊予鉄道市内電車環状線 木屋町駅 徒歩16分 |
| 小学校区 | 清水小学校区 |
| 中学校区 | 勝山中学校区 |
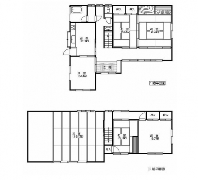
| 建物面積 | 166.59㎡ |
| 築年月日 | 1973年10月 |
| 構造 | 木造 |
| 間取り | 6DK |
| 建物規模(地上) | 2階 |
| 管理費 | - |
| 修繕積立金 | - |
| 駐車場 | 1台 |
| 管理形態 | - |
| 土地面積 | 276.98㎡公簿 |
| 土地権利 | 所有権 |
| 地目 | 宅地 |
| 都市計画 | 市街化調整区域 |
| 建ぺい率 | 70% |
| 容積率 | 200% |
| 法令上の制限 | 宅地造成規制区域 |
| 接道状況 | 南 幅員:4.0m 私道 接面:4.0m ・ 西 幅員:4.0m 私道 |
| 備考 | ●昭和57年9月増築あり(50.39坪に含みむ) ●旧既存宅地 ●入居時、町内会関連費用必要(1回のみ) ●土砂災害特別警戒区域 |
| 設備 | 水道:公営/ガス:都市ガス/排水:下水 |
| 現況 | 空家 |
| 引渡し | 相談 |
| 取引態様 | 仲介 |
| 情報更新日 | 2026/03/19 |
| 次回更新予定日 | 2026/04/18 |
現在の店頭基準金利は2.475%
万円 借入期間年 金利%
毎月のお支払い額円
※頭金0円で10年固定(ボーナス払いなし)の場合の金額です。
- 角地
御幸1丁目戸建
高台で眺望良く、日当たり良好!
| 物件担当の大西 晋平です。 現地へのご案内につきましてはお気軽にお問い合わせください。 |
清水小学校区
勝山中学校区
