松山市土居田町 中古一戸建て
価格 1,880万円返済例 月々 円
中古一戸建て
伊予鉄道郡中線 土居田駅 徒歩7分
|
|
| 物件番号 | 10637 |
|---|---|
| 住所 | 松山市土居田町 |
| 最寄駅 | 伊予鉄道郡中線 土居田駅 徒歩7分 |
| 小学校区 | 双葉小学校区 |
| 中学校区 | 雄新中学校区 |
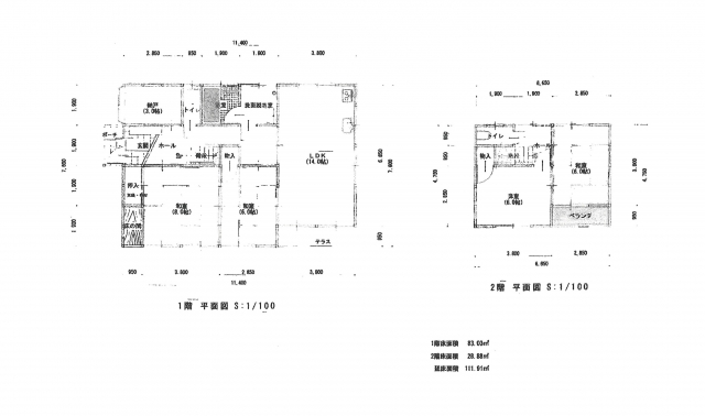
| 建物面積 | 111.91㎡ |
| 築年月日 | 1995年04月 |
| 構造 | 木造 |
| 間取り | 4SLDK |
| 建物規模(地上) | 2階 |
| 管理費 | - |
| 修繕積立金 | - |
| 駐車場 | 1台 |
| 管理形態 | - |
| 土地面積 | 168.19㎡公簿 |
| 土地権利 | 所有権 |
| 地目 | 宅地 |
| 都市計画 | 市街化区域 |
| 用途地域 | 第一種中高層住居専用地域 |
| 建ぺい率 | 60% |
| 容積率 | 200% |
| 国土法 | 不要 |
| 接道状況 | 西 幅員:約4.0m 私道 |
| 備考 | ●宅内に下水道の引込あり(未接続) |
| 設備 | 水道:公営/ガス:都市ガス/排水:浄化槽 |
| 現況 | 空家 |
| 引渡し | 相談 |
| 取引態様 | 仲介 |
| 情報更新日 | 2025/11/19 |
| 次回更新予定日 | 2025/12/19 |
現在の店頭基準金利は2.475%
万円 借入期間年 金利%
毎月のお支払い額円
※頭金0円で10年固定(ボーナス払いなし)の場合の金額です。
土居田町戸建
| 物件担当の大堀 聡です。 現地へのご案内につきましてはお気軽にお問い合わせください。 |
双葉小学校区
雄新中学校区
