松山不動産.COM TOPページ > 東温市則之内乙 > 東温市則之内戸建
伊予鉄道横河原線 横河原駅西谷小学校区中古一戸建て800万円の物件詳細です。
東温市則之内字惣宮 中古一戸建て
価格 800万円 返済例 月々 円
伊予鉄道横河原線 横河原駅 徒歩49分
中古一戸建て
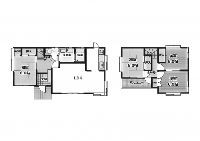
土地面積 141.06㎡(42.67坪) / 建物面積 93.01㎡ / 間取り 4LDK
お問合せの際は、物件番号No.33461をお知らせいただくとスムーズにご紹介ができますのでよろしくお願い致します。
| 物件番号 | 12641 |
|---|---|
| 住所 | 東温市則之内字惣宮 |
| 最寄駅 | 伊予鉄道横河原線 横河原駅 徒歩49分 |
| 小学校区 | 西谷小学校区 |
| 中学校区 | 川内中学校区 |
| 物件名 | 東温市則之内戸建 |
| 建物面積 | 93.01㎡ |
| 築年月日 | 1992年02月 |
| 構造 | 木造 |
| 間取り | 4LDK |
| 建物規模(地上) | 2階 |
| 駐車場 | 2台 |
| 土地面積 | 141.06㎡公簿 |
| 土地権利 | 所有権 |
| 地目 | 宅地 |
| 都市計画 | 都市計画区域外 |
| 接道状況 | 角地:南・西 |
| 現況 | 空家 |
| 引渡し | 相談 |
| 取引態様 | 仲介 |
| 情報更新日 | 2026/04/29 |
| 次回更新予定日 | 2026/05/29 |
現在の店頭基準金利は2.475%
800万円 借入期間年/金利%
毎月のお支払い額
円
※頭金0円でボーナス払いなしの場合の金額です。
また、お客様のご条件により金利の優遇幅が変動する場合があります。
また、お客様のご条件により金利の優遇幅が変動する場合があります。
- 角地
- 南西角地
- 南道路につき日当り良好
東温市則之内売戸建
| 物件担当の冨田 昌寛です。 現地へのご案内につきましてはお気軽にお問い合わせください。 |

ボタンをクリックすると、物件近辺からのルート検索、周辺の生活施設の検索が可能です。
| 物件ページQR | |
| 物件周辺地図QR |
その他設備・条件


























