松山不動産.COM TOPページ > 東温市見奈良 > 東温市見奈良戸建
伊予鉄道横河原線 見奈良駅南吉井小学校区中古一戸建て1580万円の物件詳細です。
東温市見奈良字柚壽木 中古一戸建て
価格 1,580万円 返済例 月々 円
伊予鉄道横河原線 見奈良駅 徒歩6分
中古一戸建て
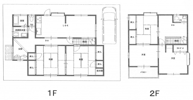
土地面積 166.78㎡(50.45坪) / 建物面積 140.79㎡ / 間取り 5LDK
お問合せの際は、物件番号No.33452をお知らせいただくとスムーズにご紹介ができますのでよろしくお願い致します。
| 物件番号 | 12639 |
|---|---|
| 住所 | 東温市見奈良字柚壽木 |
| 最寄駅 | 伊予鉄道横河原線 見奈良駅 徒歩6分 |
| 小学校区 | 南吉井小学校区 |
| 中学校区 | 重信中学校区 |
| 物件名 | 東温市見奈良戸建 |
| 建物面積 | 140.79㎡ |
| 築年月日 | 1991年03月 |
| 構造 | 木造 |
| 間取り | 5LDK |
| 建物規模(地上) | 2階 |
| 駐車場 | 1台 |
| 土地面積 | 166.78㎡公簿 |
| 土地権利 | 所有権 |
| 地目 | 宅地 |
| 都市計画 | 市街化区域 |
| 用途地域 | 第一種住居地域 |
| 建ぺい率 | 60% |
| 容積率 | 200% |
| 接道状況 | 角地 |
| 備考 | ●平成20年1月に2階(61.37m2)を増築しており、太陽光・蓄電池も搭載してます! ●売主の負担にて建物内残置物撤去後の現況渡しです。 |
| 設備 | 水道:公営/排水:下水 |
| 現況 | 空家 |
| 引渡し | 相談 |
| 取引態様 | 仲介 |
| 情報更新日 | 2026/04/29 |
| 次回更新予定日 | 2026/05/29 |
現在の店頭基準金利は2.475%
1580万円 借入期間年/金利%
毎月のお支払い額
円
※頭金0円でボーナス払いなしの場合の金額です。
また、お客様のご条件により金利の優遇幅が変動する場合があります。
また、お客様のご条件により金利の優遇幅が変動する場合があります。
- 太陽光発電
- 角地
東温市見奈良売戸建

太陽光・蓄電池も搭載してます!

| 物件担当の冨田 昌寛です。 現地へのご案内につきましてはお気軽にお問い合わせください。 |

ボタンをクリックすると、物件近辺からのルート検索、周辺の生活施設の検索が可能です。
| 物件ページQR | |
| 物件周辺地図QR |
その他設備・条件


























