松山不動産.COM TOPページ > 松山市南白水3丁目 > 南白水3丁目戸建
伊予鉄道市内電車松山市駅線 道後温泉駅伊台小学校区中古一戸建て2380万円の物件詳細です。
松山市南白水3丁目 中古一戸建て
価格 2,380万円 返済例 月々 円
伊予鉄道市内電車松山市駅線 道後温泉駅 徒歩34分
中古一戸建て
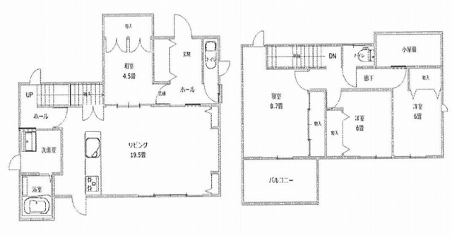
土地面積 195.16㎡(59.04坪) / 建物面積 107.64㎡ / 間取り 4SLDK| 物件番号 | 12511 |
|---|---|
| 住所 | 松山市南白水3丁目 |
| 最寄駅 | 伊予鉄道市内電車松山市駅線 道後温泉駅 徒歩34分 |
| 小学校区 | 伊台小学校区 |
| 中学校区 | 旭中学校区 |
| 物件名 | 南白水3丁目戸建 |
| 建物面積 | 107.64㎡ |
| 築年月日 | 2018年03月 |
| 構造 | 木造 |
| 間取り | 4SLDK |
| 建物規模(地上) | 2階 |
| 駐車場 | 2台 |
| 土地面積 | 195.16㎡公簿 |
| 土地権利 | 所有権 |
| 地目 | 宅地 |
| 地勢 | 平坦 |
| 建ぺい率 | 50% |
| 容積率 | 80% |
| 接道状況 | 北 幅員:約5.7m 接面:約12.99m |
| 設備 | 排水:浄化槽 |
| 現況 | 居住中 |
| 引渡し | 相談 |
| 取引態様 | 仲介 |
| 情報更新日 | 2026/04/01 |
| 次回更新予定日 | 2026/05/01 |
現在の店頭基準金利は2.475%
2380万円 借入期間年/金利%
毎月のお支払い額
円
※頭金0円でボーナス払いなしの場合の金額です。
また、お客様のご条件により金利の優遇幅が変動する場合があります。
また、お客様のご条件により金利の優遇幅が変動する場合があります。
- 太陽光発電
南白水3丁目戸建
| 物件担当の大西 晋平です。 現地へのご案内につきましてはお気軽にお問い合わせください。 自己紹介はこちら |

ボタンをクリックすると、物件近辺からのルート検索、周辺の生活施設の検索が可能です。
| 物件ページQR | |
| 物件周辺地図QR |
その他設備・条件



























お問合せの際は、物件番号NO.33335をお知らせいただくとスムーズにご紹介ができますのでよろしくお願い致します。