松山不動産.COM TOPページ > 松山市土居田町 > 土居田町新築戸建C棟
伊予鉄道郡中線 土居田駅たちばな小学校区新築一戸建て3450万円の物件詳細です。
松山市土居田町 新築一戸建て
価格 3,450万円 返済例 月々 円
伊予鉄道郡中線 土居田駅 徒歩6分
新築一戸建て
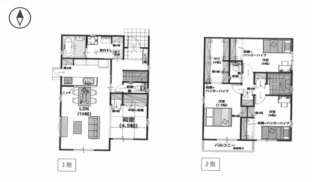
土地面積 137.09㎡(41.47坪) / 建物面積 105.99㎡ / 間取り 4SLDK| 物件番号 | 12474 |
|---|---|
| 住所 | 松山市土居田町 |
| 最寄駅 | 伊予鉄道郡中線 土居田駅 徒歩6分 |
| 小学校区 | たちばな小学校区 |
| 中学校区 | 雄新中学校区 |
| 物件名 | 土居田町新築戸建C棟 |
| 建物面積 | 105.99㎡ |
| 築年月日 | 2026年06月 |
| 構造 | 木造 |
| 間取り | 4SLDK |
| 建物規模(地上) | 2階 |
| 駐車場 | 有 並列2台 |
| 土地面積 | 137.09㎡公簿 |
| 土地権利 | 所有権 |
| 都市計画 | 市街化区域 |
| 用途地域 | 第一種住居地域 |
| 建ぺい率 | 60% |
| 容積率 | 160% |
| 国土法 | 不要 |
| 接道状況 | 北 私道(開発道路) 幅員:4m 間口:約8m |
| 備考 | ●上水道負担金:300,000円 ●浄化槽申請費用:152,110円 別途 ●合併浄化槽 ●耐震等級3取得、制振ダンパー有 ●敷地内に電柱及び支線が入ります。(北東側) |
| 設備 | 水道:公営/排水:浄化槽 |
| 現況 | 未完成 |
| 引渡し | 相談 |
| 取引態様 | 仲介 |
| 情報更新日 | 2026/04/22 |
| 次回更新予定日 | 2026/05/22 |
現在の店頭基準金利は2.475%
3450万円 借入期間年/金利%
毎月のお支払い額
円
※頭金0円でボーナス払いなしの場合の金額です。
また、お客様のご条件により金利の優遇幅が変動する場合があります。
また、お客様のご条件により金利の優遇幅が変動する場合があります。
土居田町新築戸建C棟

小学校・スーパー至近の立地!

| 物件担当の大堀 聡です。 現地へのご案内につきましてはお気軽にお問い合わせください。 |

ボタンをクリックすると、物件近辺からのルート検索、周辺の生活施設の検索が可能です。
| 物件ページQR | |
| 物件周辺地図QR |
その他設備・条件



























お問合せの際は、物件番号NO.33296をお知らせいただくとスムーズにご紹介ができますのでよろしくお願い致します。