松山不動産.COM TOPページ > 松山市余戸中4丁目 > 余戸中4丁目戸建
伊予鉄道郡中線 余戸駅さくら小学校区中古一戸建て1980万円の物件詳細です。
松山市余戸中4丁目 中古一戸建て
価格 1,980万円 返済例 月々 円
伊予鉄道郡中線 余戸駅 徒歩3分
中古一戸建て
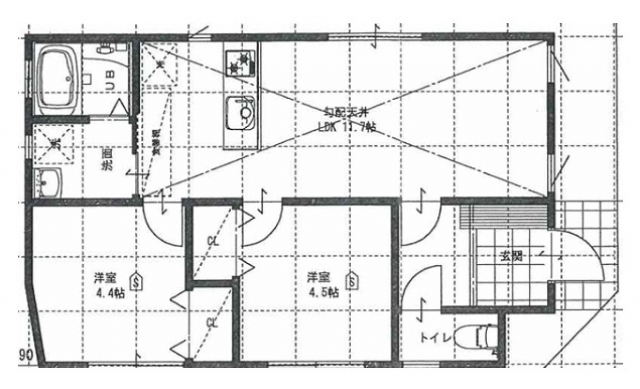
土地面積 93.17㎡(28.18坪) / 建物面積 47.82㎡ / 間取り 2LDK
お問合せの際は、物件番号NO.33278をお知らせいただくとスムーズにご紹介ができますのでよろしくお願い致します。
| 物件番号 | 12455 |
|---|---|
| 住所 | 松山市余戸中4丁目 |
| 最寄駅 | 伊予鉄道郡中線 余戸駅 徒歩3分 |
| 小学校区 | さくら小学校区 |
| 中学校区 | 余土中学校区 |
| 物件名 | 余戸中4丁目戸建 |
| 建物面積 | 47.82㎡ |
| 築年月日 | 2021年05月 |
| 構造 | 木造 |
| 間取り | 2LDK |
| 建物規模(地上) | 1階 |
| 駐車場 | 2台 |
| 土地面積 | 93.17㎡公簿 |
| 土地権利 | 所有権 |
| 地目 | 宅地 |
| 都市計画 | 市街化区域 |
| 用途地域 | 第一種住居地域 |
| 建ぺい率 | 60% |
| 容積率 | 200% |
| 国土法 | 不要 |
| 接道状況 | 東 幅員:4m 公道 接面:15m |
| 備考 | ●レディ薬局徒歩4分・ハタダ余戸店徒歩4分・西病院徒歩10分 |
| 設備 | 水道:公営/排水:下水 |
| 現況 | 空家 |
| 引渡し | 相談 |
| 取引態様 | 仲介 |
| 情報更新日 | 2026/04/15 |
| 次回更新予定日 | 2026/05/15 |
現在の店頭基準金利は2.475%
1980万円 借入期間年/金利%
毎月のお支払い額
円
※頭金0円でボーナス払いなしの場合の金額です。
また、お客様のご条件により金利の優遇幅が変動する場合があります。
また、お客様のご条件により金利の優遇幅が変動する場合があります。
余戸中4丁目戸建

1~2人暮らしに最適! 買物、通学に近く、閑静な住宅地 コンパクトな平屋建て!

| 物件担当の大堀 聡です。 現地へのご案内につきましてはお気軽にお問い合わせください。 |

ボタンをクリックすると、物件近辺からのルート検索、周辺の生活施設の検索が可能です。
| 物件ページQR | |
| 物件周辺地図QR |
その他設備・条件


























