松山不動産.COM TOPページ > 松山市神田町 > 藤和神田町ハイタウン
伊予鉄道高浜線 三津駅三津浜小学校区中古マンション1480万円の物件詳細です。
松山市神田町 中古マンション
価格 1,480万円 返済例 月々 円
伊予鉄道高浜線 三津駅 徒歩3分
中古マンション
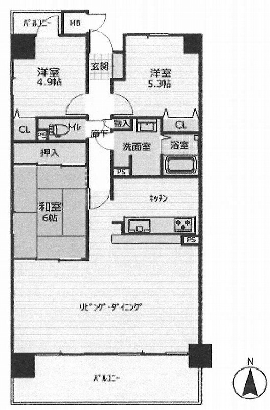
建物面積 79.01㎡ 壁芯 / 間取り 3LDK| 物件番号 | 12362 |
|---|---|
| 住所 | 松山市神田町 |
| 最寄駅 | 伊予鉄道高浜線 三津駅 徒歩3分 |
| 小学校区 | 三津浜小学校区 |
| 中学校区 | 三津浜中学校区 |
| 物件名 | 藤和神田町ハイタウン |
| 建物名 | 藤和神田町ハイタウン |
| 建物面積 | 79.01㎡ 壁芯 |
| 築年月日 | 1991年07月 |
| 構造 | SRC(鉄骨鉄筋コンクリート) |
| 間取り | 3LDK |
| バルコニー面積 | 13.44㎡ |
| 建物規模(地上) | 14階 |
| 所在階 | 7階 |
| 総戸数 | 45 戸 |
| 管理費 | 8100円 |
| 修繕積立金 | 11900円 |
| 駐車場 | 有 空き区画・料金は要確認 |
| 管理方式 | 日勤管理 |
| 管理形態 | 全部委託 |
| 管理会社 | 穴吹ハウジングサービス |
| 土地権利 | 所有権 |
| 都市計画 | 市街化区域 |
| 用途地域 | 商業地域 |
| 建ぺい率 | 80% |
| 容積率 | 200% |
| 国土法 | 不要 |
| 備考 | ●エレベーター1基 ●ウォシュレット ●食器洗浄乾燥機 ●浴室乾燥機 ●リフォーム内容:キッチン・浴室・トイレ交換、全室クロス、床張替え等 ●駐車場近隣あり:月額5,500円 ●バイク置場:1台月額300円 ●自転車:1台月額100円 |
| 設備 | ガス:都市ガス |
| 現況 | 空家 |
| 引渡し | 相談 |
| 取引態様 | 仲介 |
| 情報更新日 | 2026/03/03 |
| 次回更新予定日 | 2026/04/02 |
現在の店頭基準金利は2.475%
1480万円 借入期間年/金利%
毎月のお支払い額
円
※頭金0円でボーナス払いなしの場合の金額です。
また、お客様のご条件により金利の優遇幅が変動する場合があります。
また、お客様のご条件により金利の優遇幅が変動する場合があります。
- 角部屋
- 南道路につき日当り良好
藤和神田町ハイタウン3LDK

ボタンをクリックすると、物件近辺からのルート検索、周辺の生活施設の検索が可能です。
| 物件ページQR | |
| 物件周辺地図QR |
その他設備・条件





























お問合せの際は、物件番号NO.33190をお知らせいただくとスムーズにご紹介ができますのでよろしくお願い致します。