松山不動産.COM TOPページ > 松山市西垣生町 > 西垣生町土地D号地
伊予鉄道郡中線 余戸駅垣生小学校区土地1174.5万円の物件詳細です。
松山市西垣生町 土地
価格 1,174.5万円 返済例 月々 円
伊予鉄道郡中線 余戸駅 徒歩37分
土地
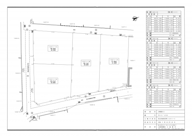
土地面積 155.31㎡(46.98坪)| 物件番号 | 12185 |
|---|---|
| 住所 | 松山市西垣生町 |
| 最寄駅 | 伊予鉄道郡中線 余戸駅 徒歩37分 |
| 小学校区 | 垣生小学校区 |
| 中学校区 | 垣生中学校区 |
| 物件名 | 西垣生町土地D号地 |
| 土地面積 | 155.31㎡ |
| 備考 | ・水道負担金 35万円 ・下水道受益負担金 m2/253円 公共下水道の宅内桝については、松山市に申請することにより、公費で引込可能です。その宅内桝申請は買主様の負担となります。(引込工事完了までの期間は約3ヶ月程度必要となります。) ・境界基礎・ブロック2段・メッシュフェンス施工費用(道路から1.2mは境界基礎のみ) 266,570円 ・西側里道は建築基準法上の道路ではありません。 |
| 設備 | 水道:公営/排水:下水 |
| 現況 | 未完成 |
| 引渡し | - |
| 取引態様 | 仲介 |
| 情報更新日 | 2026/01/08 |
| 次回更新予定日 | 2026/02/07 |
現在の店頭基準金利は2.475%
1174.5万円 借入期間年/金利%
毎月のお支払い額
円
※頭金0円でボーナス払いなしの場合の金額です。
また、お客様のご条件により金利の優遇幅が変動する場合があります。
また、お客様のご条件により金利の優遇幅が変動する場合があります。
松山市西垣生町分譲地D号地
| 物件担当の大堀 聡です。 現地へのご案内につきましてはお気軽にお問い合わせください。 自己紹介はこちら |

ボタンをクリックすると、物件近辺からのルート検索、周辺の生活施設の検索が可能です。
| 物件ページQR | |
| 物件周辺地図QR |
その他設備・条件



























お問合せの際は、物件番号No.32009をお知らせいただくとスムーズにご紹介ができますのでよろしくお願い致します。