松山不動産.COM TOPページ > 東温市牛渕 > 東温市牛渕戸建
伊予鉄道横河原線 牛渕駅南吉井小学校区中古一戸建て2680万円の物件詳細です。
東温市牛渕 中古一戸建て
価格 2,680万円 返済例 月々 円
伊予鉄道横河原線 牛渕駅 徒歩2分
中古一戸建て
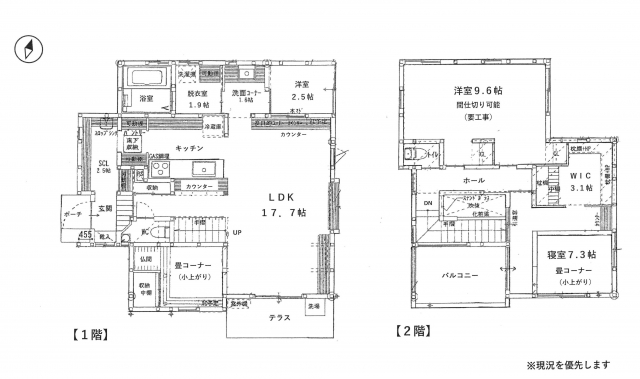
土地面積 174.73㎡(52.86坪) / 建物面積 107.02㎡ / 間取り 3SLDK
お問合せの際は、物件番号No.32955をお知らせいただくとスムーズにご紹介ができますのでよろしくお願い致します。
| 物件番号 | 12138 |
|---|---|
| 住所 | 東温市牛渕 |
| 最寄駅 | 伊予鉄道横河原線 牛渕駅 徒歩2分 |
| 小学校区 | 南吉井小学校区 |
| 中学校区 | 重信中学校区 |
| 物件名 | 東温市牛渕戸建 |
| 建物面積 | 107.02㎡ |
| 築年月日 | 2019年03月 |
| 構造 | 木造 |
| 間取り | 3SLDK |
| 間取り内訳 | 3SLDK+小屋裏 |
| 建物規模(地上) | 2階 |
| 駐車場 | 2台 |
| 土地面積 | 174.73㎡公簿 |
| 土地権利 | 所有権 |
| 地目 | 宅地 |
| 都市計画 | 市街化調整区域 |
| 建ぺい率 | 70% |
| 容積率 | 200% |
| 接道状況 | 西 幅員約4.0m 公道 |
| 備考 | ※伊予鉄道牛渕駅まで徒歩2分 ※南吉井小学校まで徒歩9分 ※駐車場2台(縦列) ※小屋裏、WIC完備で収納充実 ※旧既存宅地 ※洪水浸水想定区域内(0.5m未満) |
| 設備 | 水道:公営/ガス:プロパン/排水:下水 |
| 現況 | - |
| 引渡し | 相談 |
| 取引態様 | 仲介 |
| 情報更新日 | 2026/01/30 |
| 次回更新予定日 | 2026/03/01 |
現在の店頭基準金利は2.475%
2680万円 借入期間年/金利%
毎月のお支払い額
円
※頭金0円でボーナス払いなしの場合の金額です。
また、お客様のご条件により金利の優遇幅が変動する場合があります。
また、お客様のご条件により金利の優遇幅が変動する場合があります。
東温市牛渕売戸建

ボタンをクリックすると、物件近辺からのルート検索、周辺の生活施設の検索が可能です。
| 物件ページQR | |
| 物件周辺地図QR |
その他設備・条件




























