松山不動産.COM TOPページ > 松山市岩崎町2丁目 > ライオンズマンション道後公園第二
伊予鉄道市内電車松山市駅線 道後公園駅道後小学校区中古マンション1980万円の物件詳細です。
松山市岩崎町2丁目 中古マンション
価格 1,980万円 返済例 月々 円
伊予鉄道市内電車松山市駅線 道後公園駅 徒歩4分
中古マンション
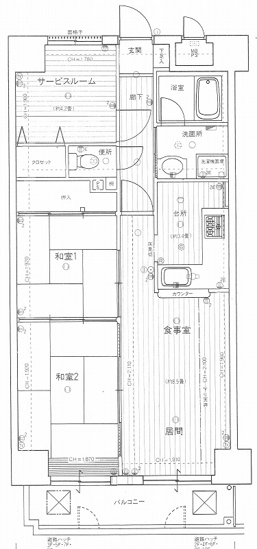
建物面積 63.84㎡ 壁芯 / 間取り 2SLDK
お問合せの際は、物件番号NO.32925をお知らせいただくとスムーズにご紹介ができますのでよろしくお願い致します。
| 物件番号 | 12102 |
|---|---|
| 住所 | 松山市岩崎町2丁目 |
| 最寄駅 | 伊予鉄道市内電車松山市駅線 道後公園駅 徒歩4分 |
| 小学校区 | 道後小学校区 |
| 中学校区 | 道後中学校区 |
| 物件名 | ライオンズマンション道後公園第二 |
| 建物名 | ライオンズマンション道後公園第二 |
| 建物面積 | 63.84㎡ 壁芯 |
| 築年月日 | 1995年04月 |
| 構造 | SRC(鉄骨鉄筋コンクリート) |
| 間取り | 2SLDK |
| バルコニー面積 | 6.89㎡ |
| 主要採光面(向き) | 南 |
| 建物規模(地上) | 15階 |
| 所在階 | 9階 |
| 総戸数 | 84 戸 |
| 管理費 | 6700円 |
| 修繕積立金 | 12900円 |
| 駐車場 | 有 空き区画・料金は要確認 |
| 管理方式 | 日勤管理 |
| 管理形態 | 全部委託 |
| 管理会社 | 大京アステージ |
| 土地権利 | 所有権 |
| 都市計画 | 市街化区域 |
| 用途地域 | 商業地域 |
| 建ぺい率 | 80% |
| 容積率 | 400% |
| 国土法 | 不要 |
| 法令上の制限 | 準防火地域 |
| 備考 | ●エレベーター1基 |
| 設備 | ガス:都市ガス |
| 現況 | 空家 |
| 引渡し | 相談 |
| 取引態様 | 仲介 |
| 情報更新日 | 2025/11/17 |
| 次回更新予定日 | 2025/12/17 |
現在の店頭基準金利は2.475%
1980万円 借入期間年/金利%
毎月のお支払い額
円
※頭金0円でボーナス払いなしの場合の金額です。
また、お客様のご条件により金利の優遇幅が変動する場合があります。
また、お客様のご条件により金利の優遇幅が変動する場合があります。
- 南道路につき日当り良好
ライオンズマンション道後公園第二2SLDK

ボタンをクリックすると、物件近辺からのルート検索、周辺の生活施設の検索が可能です。
| 物件ページQR | |
| 物件周辺地図QR |
その他設備・条件




























