松山不動産.COM TOPページ > 松山市松ノ木1丁目 > 松ノ木1丁目戸建
伊予鉄道高浜線 港山駅高浜小学校区中古一戸建て1280万円の物件詳細です。
松山市松ノ木1丁目 中古一戸建て
価格 1,280万円 返済例 月々 円
伊予鉄道高浜線 港山駅 徒歩7分
中古一戸建て
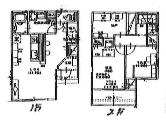
土地面積 68.61㎡(20.75坪) / 建物面積 68.42㎡ / 間取り 2LDK
お問合せの際は、物件番号NO.32905をお知らせいただくとスムーズにご紹介ができますのでよろしくお願い致します。
| 物件番号 | 12081 |
|---|---|
| 住所 | 松山市松ノ木1丁目 |
| 最寄駅 | 伊予鉄道高浜線 港山駅 徒歩7分 |
| 小学校区 | 高浜小学校区 |
| 中学校区 | 高浜中学校区 |
| 物件名 | 松ノ木1丁目戸建 |
| 建物面積 | 68.42㎡ |
| 築年月日 | 2013年09月 |
| 構造 | 木造 |
| 間取り | 2LDK |
| 建物規模(地上) | 2階 |
| 駐車場 | 1台 軽1台 |
| 土地面積 | 68.61㎡公簿 |
| 地目 | 宅地 |
| 都市計画 | 市街化区域 |
| 用途地域 | 第一種住居地域 |
| 建ぺい率 | 60% |
| 容積率 | 160% |
| 接道状況 | 南 幅員4m 私道 接面6.5m |
| 備考 | ●駐車場軽1台 ●オール電化 |
| 設備 | 水道:公営/排水:浄化槽 |
| 現況 | 居住中 |
| 引渡し | 相談 |
| 取引態様 | 仲介 |
| 情報更新日 | 2025/12/11 |
| 次回更新予定日 | 2026/01/10 |
現在の店頭基準金利は2.475%
1280万円 借入期間年/金利%
毎月のお支払い額
円
※頭金0円でボーナス払いなしの場合の金額です。
また、お客様のご条件により金利の優遇幅が変動する場合があります。
また、お客様のご条件により金利の優遇幅が変動する場合があります。
- オール電化・オール電化住宅
- 南道路につき日当り良好
松山市松ノ木1丁目売戸建

ボタンをクリックすると、物件近辺からのルート検索、周辺の生活施設の検索が可能です。
| 物件ページQR | |
| 物件周辺地図QR |
その他設備・条件




























