松山不動産.COM TOPページ > 松山市本町6丁目 > ロータリー本町
伊予鉄道市内電車本町線 本町六丁目駅清水小学校区中古マンション280万円の物件詳細です。
松山市本町6丁目 中古マンション
価格 280万円 返済例 月々 円
伊予鉄道市内電車本町線 本町六丁目駅 徒歩1分
中古マンション
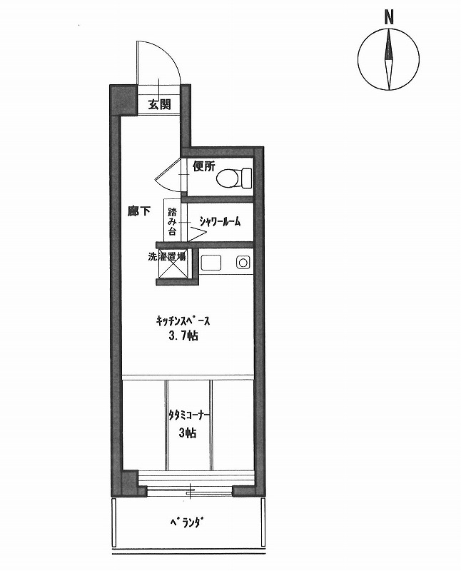
建物面積 21.25㎡ 内法 / 間取り 1R
お問合せの際は、物件番号NO.32902をお知らせいただくとスムーズにご紹介ができますのでよろしくお願い致します。
| 物件番号 | 12078 |
|---|---|
| 住所 | 松山市本町6丁目 |
| 最寄駅 | 伊予鉄道市内電車本町線 本町六丁目駅 徒歩1分 |
| 小学校区 | 清水小学校区 |
| 中学校区 | 勝山中学校区 |
| 物件名 | ロータリー本町 |
| 建物名 | ロータリー本町 |
| 建物面積 | 21.25㎡ 内法 |
| 築年月日 | 1981年02月 |
| 構造 | SRC(鉄骨鉄筋コンクリート) |
| 間取り | 1R |
| バルコニー面積 | 3.60㎡ |
| 建物規模(地上) | 14階 |
| 所在階 | 8階 |
| 総戸数 | 317 戸 |
| 管理費 | 6000円 |
| 修繕積立金 | 1300円 |
| 駐車場 | 有 空き区画・料金は要確認 |
| 管理方式 | 自主管理 |
| 管理形態 | 自主管理 |
| 土地権利 | 所有権 |
| 都市計画 | 市街化区域 |
| 用途地域 | 商業地域 |
| 建ぺい率 | 90% |
| 容積率 | 400% |
| 国土法 | 不要 |
| 法令上の制限 | 準防火地域 |
| 備考 | ●エレベーター2基 ●エアコン ●ウォシュレット ●IHクッキングヒーター ●賃貸同時募集:月額26,000円 ●水道料金:基本料金月500円 |
| 現況 | 空家 |
| 引渡し | 相談 |
| 取引態様 | 仲介 |
| 情報更新日 | 2025/12/09 |
| 次回更新予定日 | 2026/01/08 |
現在の店頭基準金利は2.475%
280万円 借入期間年/金利%
毎月のお支払い額
円
※頭金0円でボーナス払いなしの場合の金額です。
また、お客様のご条件により金利の優遇幅が変動する場合があります。
また、お客様のご条件により金利の優遇幅が変動する場合があります。
ロータリー本町1R

ボタンをクリックすると、物件近辺からのルート検索、周辺の生活施設の検索が可能です。
| 物件ページQR | |
| 物件周辺地図QR |
その他設備・条件




























