松山不動産.COM TOPページ > 松山市西石井2丁目 > 西石井2丁目戸建
伊予鉄道横河原線 いよ立花駅石井北小学校区中古一戸建て1250万円の物件詳細です。
松山市西石井2丁目 中古一戸建て
価格 1,250万円 返済例 月々 円
伊予鉄道横河原線 いよ立花駅 徒歩19分
中古一戸建て
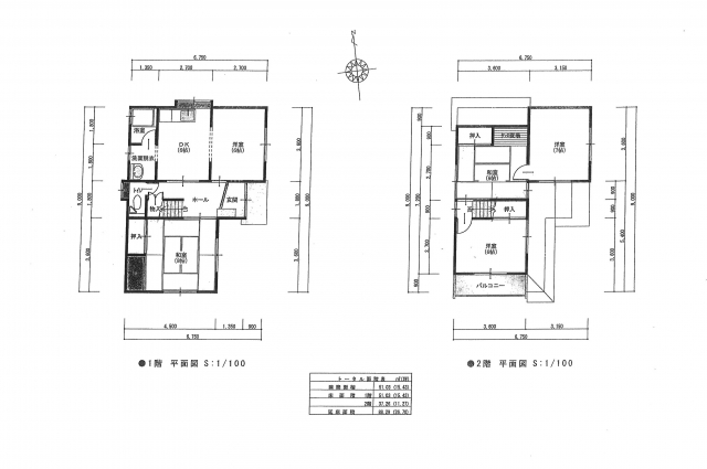
土地面積 104.06㎡(31.48坪) / 建物面積 76.95㎡ / 間取り 5DK
お問合せの際は、物件番号No.32846をお知らせいただくとスムーズにご紹介ができますのでよろしくお願い致します。
| 物件番号 | 12022 |
|---|---|
| 住所 | 松山市西石井2丁目 |
| 最寄駅 | 伊予鉄道横河原線 いよ立花駅 徒歩19分 |
| 小学校区 | 石井北小学校区 |
| 中学校区 | 南中学校区 |
| 物件名 | 西石井2丁目戸建 |
| 建物面積 | 76.95㎡ |
| 築年月日 | 1985年04月 |
| 構造 | 木造 |
| 間取り | 5DK |
| 建物規模(地上) | 2階 |
| 駐車場 | 1台 |
| 土地面積 | 104.06㎡公簿 |
| 地目 | 宅地 |
| 都市計画 | 市街化区域 |
| 用途地域 | 第一種低層住居専用地域 |
| 建ぺい率 | 50% |
| 容積率 | 80% |
| 接道状況 | 角地 |
| 備考 | 増築部分有(建築確認・増築登記無し) 建ぺい率、容積率オーバー |
| 設備 | 水道:公営/排水:下水 |
| 現況 | 空家 |
| 引渡し | 相談 |
| 取引態様 | 仲介 |
| 情報更新日 | 2026/01/25 |
| 次回更新予定日 | 2026/02/24 |
現在の店頭基準金利は2.475%
1250万円 借入期間年/金利%
毎月のお支払い額
円
※頭金0円でボーナス払いなしの場合の金額です。
また、お客様のご条件により金利の優遇幅が変動する場合があります。
また、お客様のご条件により金利の優遇幅が変動する場合があります。
- 角地
- 東南角地
- 南道路につき日当り良好
松山市西石井2丁目売戸建
| 物件担当の大堀 聡です。 現地へのご案内につきましてはお気軽にお問い合わせください。 自己紹介はこちら |

ボタンをクリックすると、物件近辺からのルート検索、周辺の生活施設の検索が可能です。
| 物件ページQR | |
| 物件周辺地図QR |
その他設備・条件


























