松山不動産.COM TOPページ > 松山市安城寺町 > 安城寺町戸建
JR予讃線 伊予和気駅久枝小学校区中古一戸建て2380万円の物件詳細です。
松山市安城寺町 中古一戸建て
価格 2,380万円 返済例 月々 円
JR予讃線 伊予和気駅 徒歩27分
中古一戸建て
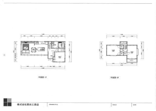
土地面積 103.03㎡(31.17坪) / 建物面積 76.59㎡ / 間取り 3LDK| 物件番号 | 11974 |
|---|---|
| 住所 | 松山市安城寺町 |
| 最寄駅 | JR予讃線 伊予和気駅 徒歩27分 |
| 小学校区 | 久枝小学校区 |
| 中学校区 | 北中学校区 |
| 物件名 | 安城寺町戸建 |
| 建物面積 | 76.59㎡ |
| 築年月日 | 1995年03月 |
| 構造 | 木造 |
| 間取り | 3LDK |
| 建物規模(地上) | 2階 |
| 駐車場 | 2台 |
| 土地面積 | 103.03㎡公簿 |
| 土地権利 | 所有権 |
| 地目 | 宅地 |
| 都市計画 | 市街化区域 |
| 用途地域 | 第一種住居地域 |
| 建ぺい率 | 60% |
| 容積率 | 200% |
| 備考 | 432-1(道路部分123.38m2)、432-7(道路後退部分6.08m2)は無償譲渡します。 令和7年8月全面リフォーム完成!耐震補強工事も行っています! 引渡予定(令和7年11月下旬) |
| 設備 | 水道:公営/ガス:プロパン/排水:浄化槽 |
| 現況 | 空家 |
| 引渡し | - |
| 取引態様 | 仲介 |
| 情報更新日 | 2026/05/16 |
| 次回更新予定日 | 2026/06/15 |
現在の店頭基準金利は2.475%
2380万円 借入期間年/金利%
毎月のお支払い額
円
※頭金0円でボーナス払いなしの場合の金額です。
また、お客様のご条件により金利の優遇幅が変動する場合があります。
また、お客様のご条件により金利の優遇幅が変動する場合があります。
松山市安城寺町売戸建
| 物件担当の大西 晋平です。 現地へのご案内につきましてはお気軽にお問い合わせください。 自己紹介はこちら |

ボタンをクリックすると、物件近辺からのルート検索、周辺の生活施設の検索が可能です。
| 物件ページQR | |
| 物件周辺地図QR |
その他設備・条件



























お問合せの際は、物件番号No.32797をお知らせいただくとスムーズにご紹介ができますのでよろしくお願い致します。