松山不動産.COM TOPページ > 松山市古川西1丁目 > 古川西1丁目戸建
JR予讃線 市坪駅椿小学校区中古一戸建て1680万円の物件詳細です。
松山市古川西1丁目 中古一戸建て
価格 1,680万円 返済例 月々 円
JR予讃線 市坪駅 徒歩8分
中古一戸建て
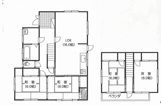
土地面積 149.93㎡(45.35坪) / 建物面積 100.19㎡ / 間取り 4LDK
お問合せの際は、物件番号NO.32758をお知らせいただくとスムーズにご紹介ができますのでよろしくお願い致します。
| 物件番号 | 11930 |
|---|---|
| 住所 | 松山市古川西1丁目 |
| 最寄駅 | JR予讃線 市坪駅 徒歩8分 |
| 小学校区 | 椿小学校区 |
| 中学校区 | 椿中学校区 |
| 物件名 | 古川西1丁目戸建 |
| 建物面積 | 100.19㎡ |
| 築年月日 | 1979年12月 |
| 構造 | 木造 |
| 間取り | 4LDK |
| 建物規模(地上) | 2階 |
| 駐車場 | 有 普通車2台(縦列) |
| 土地面積 | 149.93㎡公簿 |
| 土地権利 | 所有権 |
| 地目 | 宅地 |
| 地勢 | 平坦 |
| 都市計画 | 市街化区域 |
| 用途地域 | 第一種低層住居専用地域 |
| 建ぺい率 | 50% |
| 容積率 | 80% |
| 国土法 | 不要 |
| 法令上の制限 | 法22条 |
| 接道状況 | 西 幅員:約4m 接面:約14m 開発道路 |
| 備考 | ●平成15年一部リフォーム済み |
| 設備 | 水道:公営/排水:下水 |
| 現況 | 空家 |
| 引渡し | 即時 |
| 取引態様 | 仲介 |
| 情報更新日 | 2025/11/29 |
| 次回更新予定日 | 2025/12/29 |
現在の店頭基準金利は2.475%
1680万円 借入期間年/金利%
毎月のお支払い額
円
※頭金0円でボーナス払いなしの場合の金額です。
また、お客様のご条件により金利の優遇幅が変動する場合があります。
また、お客様のご条件により金利の優遇幅が変動する場合があります。
- オール電化・エコキュート/エコ仕様
古川西1丁目戸建
| 物件担当の大堀 聡です。 現地へのご案内につきましてはお気軽にお問い合わせください。 自己紹介はこちら |

ボタンをクリックすると、物件近辺からのルート検索、周辺の生活施設の検索が可能です。
| 物件ページQR | |
| 物件周辺地図QR |
その他設備・条件


























