松山不動産.COM TOPページ > 松山市南斎院町 > 南斎院町戸建
伊予鉄道郡中線 余戸駅味生第二小学校区中古一戸建て1980万円の物件詳細です。
松山市南斎院町 中古一戸建て
価格 1,980万円 返済例 月々 円
伊予鉄道郡中線 余戸駅 徒歩26分
中古一戸建て
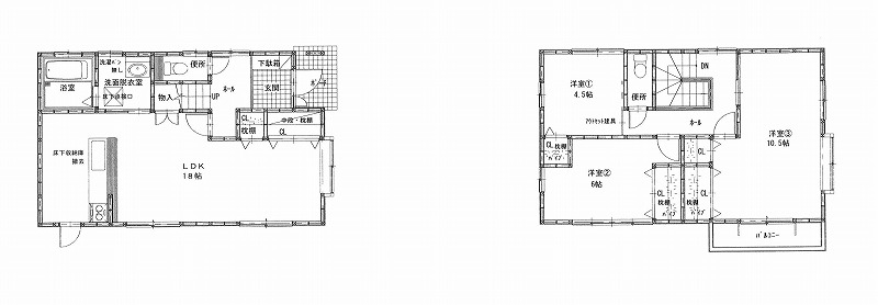
土地面積 114.00㎡(34.49坪) / 建物面積 97.70㎡ / 間取り 3LDK| 物件番号 | 11881 |
|---|---|
| 住所 | 松山市南斎院町 |
| 最寄駅 | 伊予鉄道郡中線 余戸駅 徒歩26分 |
| 小学校区 | 味生第二小学校区 |
| 中学校区 | 津田中学校区 |
| 物件名 | 南斎院町戸建 |
| 建物面積 | 97.70㎡ |
| 築年月日 | 1996年03月 |
| 構造 | 木造 |
| 間取り | 3LDK |
| 建物規模(地上) | 2階 |
| 駐車場 | 2台 縦列駐車 |
| 土地面積 | 114.00㎡公簿 |
| 土地権利 | 所有権 |
| 地目 | 宅地 |
| 地勢 | 平坦 |
| 都市計画 | 市街化区域 |
| 用途地域 | 第一種住居地域 |
| 建ぺい率 | 60% |
| 容積率 | 160% |
| 国土法 | 不要 |
| 法令上の制限 | ●建築基準法第22条区域 ●航空法 |
| 接道状況 | 東 幅員:約4m 私道 接面:約9.71m |
| 備考 | ●クローゼット・ウォシュレット ●令和7年9月リフォーム工事済み(屋根・外壁塗装工事、キッチン、浴室、トイレ新調、各室クロス、床張替え) ●東側道路は開発道路(所有者:河窪建設株式会社様) ●松山洪水ハザードマップ洪水浸水想定区域【最大浸水深:0.5~3.0m】 |
| 設備 | 水道:公営/ガス:プロパン/排水:下水 |
| 現況 | 空家 |
| 引渡し | 即時 |
| 取引態様 | 売主 |
| 情報更新日 | 2025/11/21 |
| 次回更新予定日 | 2025/12/21 |
現在の店頭基準金利は2.475%
1980万円 借入期間年/金利%
毎月のお支払い額
円
※頭金0円でボーナス払いなしの場合の金額です。
また、お客様のご条件により金利の優遇幅が変動する場合があります。
また、お客様のご条件により金利の優遇幅が変動する場合があります。
南斎院町戸建

ボタンをクリックすると、物件近辺からのルート検索、周辺の生活施設の検索が可能です。
| 物件ページQR | |
| 物件周辺地図QR |
その他設備・条件





























お問合せの際は、物件番号NO.32703をお知らせいただくとスムーズにご紹介ができますのでよろしくお願い致します。