松山不動産.COM TOPページ > 松山市土居町 > 土居町新築戸建1号棟
伊予鉄道横河原線 北久米駅石井東小学校区新築一戸建て4280万円の物件詳細です。
松山市土居町 新築一戸建て
価格 4,280万円 返済例 月々 円
伊予鉄道横河原線 北久米駅 徒歩40分
新築一戸建て
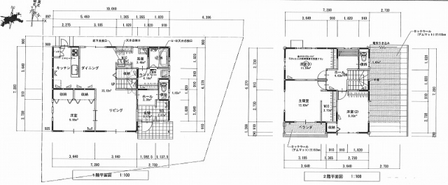
土地面積 180.52㎡(54.61坪) / 建物面積 120.06㎡ / 間取り 4SLDK
お問合せの際は、物件番号NO.32700をお知らせいただくとスムーズにご紹介ができますのでよろしくお願い致します。
| 物件番号 | 11878 |
|---|---|
| 住所 | 松山市土居町 |
| 最寄駅 | 伊予鉄道横河原線 北久米駅 徒歩40分 |
| 小学校区 | 石井東小学校区 |
| 中学校区 | 南第二中学校区 |
| 物件名 | 土居町新築戸建1号棟 |
| 建物面積 | 120.06㎡ |
| 構造 | 木造 |
| 間取り | 4SLDK |
| 建物規模(地上) | 2階 |
| 土地面積 | 180.52㎡公簿 |
| 土地権利 | 所有権 |
| 地目 | 宅地 |
| 都市計画 | 市街化区域 |
| 用途地域 | 第一種中高層住居専用地域 |
| 建ぺい率 | 60% |
| 容積率 | 200% |
| 国土法 | 不要 |
| 法令上の制限 | 22条区域 |
| 接道状況 | 東 幅員:4.00m 公道 接面:11.20m |
| 備考 | ●建築確認 第2025建確-0391号(R7年6月11日) ●耐震等級3、省エネ基準適合住宅、木造軸組工法 |
| 設備 | 水道:公営/排水:下水 |
| 現況 | 未完成 |
| 引渡し | 相談 |
| 取引態様 | 仲介 |
| 情報更新日 | 2026/01/13 |
| 次回更新予定日 | 2026/02/12 |
現在の店頭基準金利は2.475%
4280万円 借入期間年/金利%
毎月のお支払い額
円
※頭金0円でボーナス払いなしの場合の金額です。
また、お客様のご条件により金利の優遇幅が変動する場合があります。
また、お客様のご条件により金利の優遇幅が変動する場合があります。
土居新築戸建1号棟
| 物件担当の冨田 昌寛です。 現地へのご案内につきましてはお気軽にお問い合わせください。 自己紹介はこちら |

ボタンをクリックすると、物件近辺からのルート検索、周辺の生活施設の検索が可能です。
| 物件ページQR | |
| 物件周辺地図QR |
その他設備・条件


























