松山不動産.COM TOPページ > 松山市上市1丁目 > サーパス道後上市
伊予鉄道市内電車松山市駅線 道後公園駅道後小学校区中古マンション2150万円の物件詳細です。
松山市上市1丁目 中古マンション
価格 2,150万円 返済例 月々 円
伊予鉄道市内電車松山市駅線 道後公園駅 徒歩12分
中古マンション
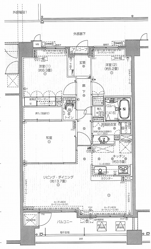
建物面積 77.26㎡ 壁芯 / 間取り 3LDK
お問合せの際は、物件番号NO.32677をお知らせいただくとスムーズにご紹介ができますのでよろしくお願い致します。
| 物件番号 | 11851 |
|---|---|
| 住所 | 松山市上市1丁目 |
| 最寄駅 | 伊予鉄道市内電車松山市駅線 道後公園駅 徒歩12分 |
| 小学校区 | 道後小学校区 |
| 中学校区 | 道後中学校区 |
| 物件名 | サーパス道後上市 |
| 建物名 | サーパス道後上市 |
| 建物面積 | 77.26㎡ 壁芯 |
| 築年月日 | 2005年08月 |
| 構造 | RC(鉄筋コンクリート) |
| 間取り | 3LDK |
| バルコニー面積 | 12.09㎡ |
| 建物規模(地上) | 10階 |
| 所在階 | 7階 |
| 総戸数 | 42 戸 |
| 管理費 | 9000円 |
| 修繕積立金 | 8800円 |
| 駐車場 | 有 区画・料金は要確認 |
| 管理方式 | 日勤管理 |
| 管理形態 | 全部委託 |
| 管理会社 | 穴吹ハウジングサービス |
| 土地権利 | 所有権 |
| 都市計画 | 市街化区域 |
| 用途地域 | 第一種中高層住居専用地域 |
| 建ぺい率 | 60% |
| 容積率 | 200% |
| 国土法 | 不要 |
| 備考 | ●温水器 ●エレベーター1基 ●ウォシュレット ●食器洗浄乾燥機 ●IHクッキングヒーター ●浴室乾燥暖房機 ●CATV:月額550円 ●インターネット利用料:月額1,650円 ●防犯対策(ALSOK):月額630円 ●町内会費:年額2,400円 ●駐車場は2年毎に抽選有 |
| 現況 | 空家 |
| 引渡し | 相談 |
| 取引態様 | 仲介 |
| 情報更新日 | 2026/03/02 |
| 次回更新予定日 | 2026/04/01 |
現在の店頭基準金利は2.475%
2150万円 借入期間年/金利%
毎月のお支払い額
円
※頭金0円でボーナス払いなしの場合の金額です。
また、お客様のご条件により金利の優遇幅が変動する場合があります。
また、お客様のご条件により金利の優遇幅が変動する場合があります。
- オール電化・オール電化住宅
サーパス道後上市3LDK

ボタンをクリックすると、物件近辺からのルート検索、周辺の生活施設の検索が可能です。
| 物件ページQR | |
| 物件周辺地図QR |
その他設備・条件




























