松山不動産.COM TOPページ > 松山市土居田町 > ジョイフルプラザ土居田
伊予鉄道郡中線 土居田駅たちばな小学校区中古マンション1700万円の物件詳細です。
松山市土居田町 中古マンション
価格 1,700万円 返済例 月々 円
伊予鉄道郡中線 土居田駅 徒歩5分
中古マンション
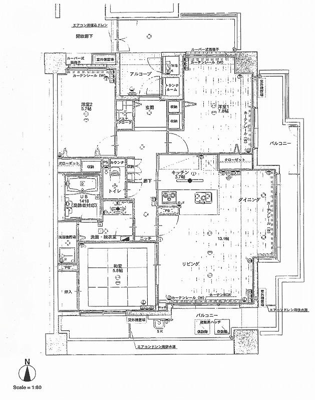
建物面積 83.17㎡ 壁芯 / 間取り 3LDK
お問合せの際は、物件番号NO.32630をお知らせいただくとスムーズにご紹介ができますのでよろしくお願い致します。
| 物件番号 | 11803 |
|---|---|
| 住所 | 松山市土居田町 |
| 最寄駅 | 伊予鉄道郡中線 土居田駅 徒歩5分 |
| 小学校区 | たちばな小学校区 |
| 中学校区 | 雄新中学校区 |
| 物件名 | ジョイフルプラザ土居田 |
| 建物名 | ジョイフルプラザ土居田 |
| 建物面積 | 83.17㎡ 壁芯 |
| 築年月日 | 2005年02月 |
| 構造 | SRC(鉄骨鉄筋コンクリート) |
| 間取り | 3LDK |
| バルコニー面積 | 27.72㎡ |
| 建物規模(地上) | 15階 |
| 所在階 | 7階 |
| 総戸数 | 43 戸 |
| 管理費 | 8400円 |
| 修繕積立金 | 5800円 |
| 駐車場 | 有 4000円 |
| 管理方式 | 日勤管理 |
| 管理形態 | 全部委託 |
| 管理会社 | ミツワ建物管理 |
| 土地権利 | 所有権 |
| 都市計画 | 市街化区域 |
| 用途地域 | 第一種住居地域 |
| 建ぺい率 | 60% |
| 容積率 | 200% |
| 国土法 | 不要 |
| 備考 | ●エレベーター2基 ●ウォシュレット ●トランクルーム ●駐車場継承可能(5年毎に駐車場場所替え抽選あり) ●町内会費:年3,000円(毎年4月徴収) |
| 設備 | ガス:プロパン |
| 現況 | 空家 |
| 引渡し | 相談 |
| 取引態様 | 仲介 |
| 情報更新日 | 2025/11/21 |
| 次回更新予定日 | 2025/12/21 |
現在の店頭基準金利は2.475%
1700万円 借入期間年/金利%
毎月のお支払い額
円
※頭金0円でボーナス払いなしの場合の金額です。
また、お客様のご条件により金利の優遇幅が変動する場合があります。
また、お客様のご条件により金利の優遇幅が変動する場合があります。
- 角部屋
ジョイフルプラザ土居田3LDK

ボタンをクリックすると、物件近辺からのルート検索、周辺の生活施設の検索が可能です。
| 物件ページQR | |
| 物件周辺地図QR |
その他設備・条件




























