松山不動産.COM TOPページ > 松山市溝辺町 > 溝辺町戸建
伊予鉄道市内電車松山市駅線 道後温泉駅湯山小学校区中古一戸建て980万円の物件詳細です。
松山市溝辺町 中古一戸建て
価格 980万円 返済例 月々 円
伊予鉄道市内電車松山市駅線 道後温泉駅 徒歩38分
中古一戸建て
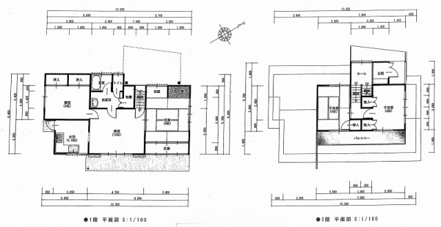
土地面積 193.32㎡(58.48坪) / 建物面積 109.19㎡ / 間取り 4LDK| 物件番号 | 11716 |
|---|---|
| 住所 | 松山市溝辺町 |
| 最寄駅 | 伊予鉄道市内電車松山市駅線 道後温泉駅 徒歩38分 |
| 小学校区 | 湯山小学校区 |
| 中学校区 | 湯山中学校区 |
| 物件名 | 溝辺町戸建 |
| 建物面積 | 109.19㎡ |
| 築年月日 | 1978年04月 |
| 構造 | 木造 |
| 間取り | 4LDK |
| 建物規模(地上) | 2階 |
| 駐車場 | 有 3台以上可(駐車場部分は、甲464番3の土地になり旧既存宅地に該当します) |
| 土地面積 | 193.32㎡公簿 |
| 地目 | 宅地 |
| 都市計画 | 市街化区域 |
| 用途地域 | 第一種住居地域 |
| 建ぺい率 | 60% |
| 容積率 | 200% |
| 国土法 | 不要 |
| 接道状況 | 西 幅員:4.4m 公道 接面:25.0m |
| 備考 | ●甲464番3 110.41m2(旧既存宅地に該当) |
| 設備 | 水道:公営/排水:下水 |
| 現況 | 空家 |
| 引渡し | 相談 |
| 取引態様 | 仲介 |
| 情報更新日 | 2026/01/22 |
| 次回更新予定日 | 2026/02/21 |
現在の店頭基準金利は2.475%
980万円 借入期間年/金利%
毎月のお支払い額
円
※頭金0円でボーナス払いなしの場合の金額です。
また、お客様のご条件により金利の優遇幅が変動する場合があります。
また、お客様のご条件により金利の優遇幅が変動する場合があります。
溝辺町戸建

ボタンをクリックすると、物件近辺からのルート検索、周辺の生活施設の検索が可能です。
| 物件ページQR | |
| 物件周辺地図QR |
その他設備・条件





























お問合せの際は、物件番号NO.32543をお知らせいただくとスムーズにご紹介ができますのでよろしくお願い致します。