松山不動産.COM TOPページ > 松山市松末1丁目 > 松末一丁目戸建
伊予鉄道横河原線 福音寺駅北久米小学校区中古一戸建て1390万円の物件詳細です。
松山市松末一丁目 中古一戸建て
価格 1,390万円 返済例 月々 円
伊予鉄道横河原線 福音寺駅 徒歩11分
中古一戸建て
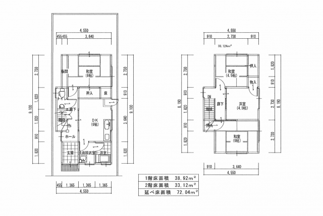
土地面積 142.73㎡(43.18坪) / 建物面積 58.79㎡ / 間取り 4DK| 物件番号 | 10979 |
|---|---|
| 住所 | 松山市松末一丁目 |
| 最寄駅 | 伊予鉄道横河原線 福音寺駅 徒歩11分 |
| 小学校区 | 北久米小学校区 |
| 中学校区 | 桑原中学校区 |
| 物件名 | 松末一丁目戸建 |
| 建物面積 | 58.79㎡ |
| 築年月日 | 1989年01月 |
| 構造 | 木造 |
| 間取り | 4DK |
| 建物規模(地上) | 2階 |
| 駐車場 | 2台 |
| 土地面積 | 142.73㎡公簿 |
| 土地権利 | 所有権 |
| 地目 | 宅地 |
| 都市計画 | 市街化区域 |
| 用途地域 | 第一種中高層住居専用地域 |
| 建ぺい率 | 60% |
| 容積率 | 200% |
| 国土法 | 不要 |
| 法令上の制限 | 建築基準法第22条地域 |
| 接道状況 | 東 幅員:約4.0m 私道 接面:約8.9m |
| 備考 | ●フジ松末店まで徒歩約1分 ●東側道路は開発道路になります。 ●建物に傾きがございます。 |
| 設備 | 水道:公営/ガス:都市ガス/排水:下水 |
| 現況 | 空家 |
| 引渡し | 相談 |
| 取引態様 | 仲介 |
| 情報更新日 | 2026/04/21 |
| 次回更新予定日 | 2026/05/21 |
現在の店頭基準金利は2.475%
1390万円 借入期間年/金利%
毎月のお支払い額
円
※頭金0円でボーナス払いなしの場合の金額です。
また、お客様のご条件により金利の優遇幅が変動する場合があります。
また、お客様のご条件により金利の優遇幅が変動する場合があります。
松末一丁目戸建

平成元年築4DKの建物です! スーパーやドラッグストア近くの立地です!

| 物件担当の冨田 昌寛です。 現地へのご案内につきましてはお気軽にお問い合わせください。 |

ボタンをクリックすると、物件近辺からのルート検索、周辺の生活施設の検索が可能です。
| 物件ページQR | |
| 物件周辺地図QR |
その他設備・条件



























お問合せの際は、物件番号NO.31799をお知らせいただくとスムーズにご紹介ができますのでよろしくお願い致します。